シャンボール国泰寺
- 物件価格
- 1,380万円
- 所在地
- 広島市中区国泰寺町1丁目9-27 シャンボール国泰寺402
- 交通
- 広電「市役所前」 徒歩5分
- 最寄バス停
- 「国泰寺町2丁目」 徒歩1分
- 学校区
- 袋町小 / 国泰寺中
※学校区は住所から自動判定したものであり、保証できる情報ではございません。正確な学校区はお問い合わせ下さい。
- 物件更新日:
- 2022年08月31日
セールスポイント
【シャンボール国泰寺】
中区国泰寺町1丁目の中古マンション!
~オーナーチェンジ物件~
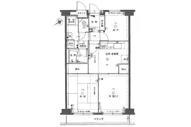
・10階建ての4階部分 専有49.21㎡の2LDK☆
(3DK⇒2LDKへ間取り変更有)
・日当り良好♪
・ペット飼育可♪
・市内中心部に近く電停、バス停が利用できる便利な立地☆
・現在賃貸中:月額68,000円 資産運用にいかがですか♪
~周辺環境~
・セブンイレブン広島国泰寺2丁目店:徒歩4分(300m)
・アーバス東千田:徒歩6分(430m)
・ウォンツ小町店:徒歩7分(524m)
・広島市役所:徒歩5分(390m)
・東千田公園:徒歩5分(386m)
・広島市立袋町小学校:徒歩12分(1000m)
・広島市立国泰寺中学校:徒歩3分(280m)
《広島市中区エリアの中古マンション、不動産情報は「住むりえ」にお任せください♪》
*****
◇住まいのことなら≪住むりえ≫に何でもお気軽にご相談ください♪♪
◇お客様のニーズに最適な一戸建て、マンション、土地などの不動産情報をご提供致します!!
◇注文住宅をご検討の方やリノベーション、売却をお考えの方もお気軽にご相談ください♪♪
「人型アイコン」を地図上にドラッグすることで『Google Street View』に切り替わります。
※地図上の「対象地」は「日本、〒730-0042 広島県広島市中区国泰寺町1丁目9−27」の場所を指しています。実際の場所ではない場合がございます。詳しくはお問い合わせください。
物件概要
| 種目 | 中古マンション | ||
|---|---|---|---|
| 間取り | 2LDK | 間取り内訳 | |
| 専有面積 | 49.21㎡ | 建物構造 | SRC |
| バルコニー面積 | 5.07㎡ | 向き | |
| 階数 | 10階建 | 所在階 | 4階 |
| 築年月(竣工月) | 1979年11月 | 駐車場有無 | |
| 駐車場料金 | 総戸数 | 84 | |
| 管理費 | 6,100円 | 積立金 | 6,396円 |
| 土地権利 | 所有権 | 管理形態/方式 | 管理会社に全部委託/日勤 |
| 用途地域 | 商業地域 | ||
| 現況 | 賃貸中 | 取引態様 | 媒介 |
取引条件等
| 引渡し | 相談 |
|---|
その他
| 設備 | 室内洗濯機置場、エレベーター、都市ガス、駐輪場 | ||
|---|---|---|---|
| 特徴 | 日当り良好、3DK⇒2LDKへ間取り変更 | ||
| 諸条件・相談 | ペット可、(細則有) ☆お客様のニーズに最適な一戸建て、マンション、土地などの不動産情報をご提供致します! | ||
| 情報登録日 | 2022年8月30日 | 情報更新予定日 | 2026年5月16日 |
| 物件番号 | 101789 | 建築確認番号 | |