広島市佐伯区河内南1丁目 中古一戸建て
- 物件価格
- 1,580万円(↓6.0%値下がり)
- 所在地
- 広島市佐伯区河内南1丁目
- 交通
- –
- 最寄バス停
- 「彩が丘団地」 徒歩2分
- 学校区
- 彩が丘小 / 三和中
※学校区は住所から自動判定したものであり、保証できる情報ではございません。正確な学校区はお問い合わせ下さい。
- 物件更新日:
- 2025年04月18日
- 価格改定日:
- 2025年04月16日
セールスポイント
【佐伯区河内南1丁目 中古戸建て住宅】
ゆったりと時が流れる落ちついた住宅街♪
木造2階建て 平成3年築 部屋数豊富な5LDK☆
陽当たり良好♪♪
駐車可!カーポート付☆
団地内には公園が多く緑豊か♪子育てにも最適♪
「彩が丘団地」バス停まで徒歩2分!
≪資料請求できます♪お気軽にお問い合わせください♪≫
~周辺環境~
・彩が丘第三公園:徒歩4分(240m)
・広島市彩が丘公民館:徒歩6分(500m)
・ファミリーマート広島下河内店:徒歩19分(1400m)
・フレスタ河内店:徒歩21分(1500m)
・広島市立彩が丘小学校:徒歩15分(1000m)
・広島市立三和中学校:徒歩30分(2200m)
・医療法人和同会広島グリーンヒル病院:徒歩20分(1400m)
《広島市佐伯区エリアの中古戸建て住宅、不動産情報は「住むりえ」にお任せください》
*****
◇住まいのことなら≪住むりえ≫に何でもお気軽にご相談ください♪♪
◇お客様のニーズに最適な一戸建て、マンション、土地などの不動産情報をご提供致します!!
◇注文住宅をご検討の方やリノベーション、売却をお考えの方もお気軽にご相談ください♪♪
「人型アイコン」を地図上にドラッグすることで『Google Street View』に切り替わります。
※地図上の「対象地」は「日本、〒731-5153 広島県広島市佐伯区河内南1丁目33−25」の場所を指しています。実際の場所ではない場合がございます。詳しくはお問い合わせください。
物件概要
| 種目 | 中古一戸建住宅 | ||
|---|---|---|---|
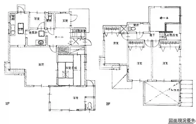
| 間取り | 5LDK | 間取り内訳 | |
| 土地面積 | 192.61㎡ | 私道面積 | |
| 建物面積 | 114.81㎡ | 建物構造規模 | 木造 2階建 |
| 築年月(竣工月) | 1991年10月 | 駐車場 | 有 |
| 建ぺい率/容積率 | 50%/100% | 都市計画 | 市街化区域 |
| 接道状況 | 北西5m 公道 一方道路 | ||
| 地目 | 宅地 | ||
| 土地権利 | 所有権 | 地勢 | |
| 用途地域 | 第一種低層住居専用地域 | ||
| 現況 | 空家 | 取引態様 | 媒介 |
取引条件等
| 引渡し | 相談 |
|---|
その他
| 設備 | 都市ガス、上水道、下水道 | ||
|---|---|---|---|
| 特徴 | 日当り良好、増築部分未登記、外装改修済 | ||
| 諸条件・相談 | 現況渡し、閑静な住宅街 ☆お客様のニーズに最適な一戸建て、マンション、土地などの不動産情報をご提供致します! | ||
| 情報登録日 | 2023年9月19日 | 情報更新予定日 | 2026年5月11日 |
| 物件番号 | 112785 | 建築確認番号 | |