広島市安佐南区山本新町4丁目 中古一戸建て (建築後未入居)
- 物件価格
- 2,980万円(↓25.1%値下がり)
- 所在地
- 広島市安佐南区山本新町4丁目 (建築後未入居)
- 交通
- –
- 最寄バス停
- 「春日野」 徒歩5分
- 学校区
- 春日野小 / 祇園中
※学校区は住所から自動判定したものであり、保証できる情報ではございません。正確な学校区はお問い合わせ下さい。
- 物件更新日:
- 2026年04月26日
- 価格改定日:
- 2026年04月25日
セールスポイント
【安佐南区山本新町4丁目 建築後未入居】
区画整理された美しい街並み♪
自然と共存する環境を備えた春日野団地☆
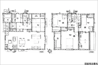
令和5年8月完成♪敷地約50坪♪4LDK+WIC♪
駐車場は3台可!(車種による)
人と環境に優しいオール電化。光熱費もおトク☆
開放感あふれる対面式キッチン♪
リビングに繋がる寛ぎの和室は約4.5帖♪
公園の多い緑豊かなエリア☆子育てにも最適♪
最寄りのバス停まで徒歩5分‼
≪ご見学できます♪お気軽にお問い合わせください♪≫
~周辺環境~
■春日野第十一公園:徒歩4分(約300m)
■春日野まごころ保育園:徒歩17分(約1200m)
■広島市立春日野小学校:徒歩17分(約1300m)
■広島市立祇園中学校:徒歩36分(約2500m)
■たなべ春日野クリニック:徒歩19分(約1400m)
《広島市安佐南区エリアの中古戸建て住宅、不動産情報は「住むりえ」にお任せください》
*****
◇住まいのことなら≪住むりえ≫に何でもお気軽にご相談ください♪♪
◇お客様のニーズに最適な一戸建て、マンション、土地などの不動産情報をご提供致します!!
◇注文住宅をご検討の方やリノベーション、売却をお考えの方もお気軽にご相談ください♪♪
「人型アイコン」を地図上にドラッグすることで『Google Street View』に切り替わります。
※地図上の「対象地」は「日本、〒731-0139 広島県広島市安佐南区山本新町4丁目31−25」の場所を指しています。実際の場所ではない場合がございます。詳しくはお問い合わせください。
物件概要
| 種目 | 中古一戸建住宅 | ||
|---|---|---|---|
| 間取り | 4LDK | 間取り内訳 | |
| 土地面積 | 165.86㎡ | 私道面積 | |
| 建物面積 | 108.47㎡ | 建物構造規模 | 木造 2階建 |
| 築年月(竣工月) | 2023年08月 | 駐車場 | 有 |
| 建ぺい率/容積率 | 50%/100% | 都市計画 | 市街化区域 |
| 接道状況 | 北西6m 公道 一方道路 | ||
| 地目 | |||
| 土地権利 | 所有権 | 地勢 | |
| 用途地域 | 第一種低層住居専用地域 | ||
| 現況 | 空家 | 取引態様 | 媒介 |
取引条件等
| 引渡し | 即時 |
|---|
その他
| 設備 | 温水洗浄便座、トイレ2ヶ所、追焚機能、浴室乾燥機、システムキッチン、カウンターキッチン、IHクッキングヒーター、浄水器、食器洗浄乾燥機、ウォークインクローゼット、床下収納、洗髪洗面化粧台、電気、上水道、下水道、複層ガラス、モニタ付インターホン、駐車場3台分、EV充電 | ||
|---|---|---|---|
| 特徴 | 日当り良好、オール電化、24時間換気システム | ||
| 諸条件・相談 | 新規外構工事完成済 ☆お客様のニーズに最適な一戸建て、マンション、土地などの不動産情報をご提供致します! | ||
| 情報登録日 | 2023年10月30日 | 情報更新予定日 | 2026年5月16日 |
| 物件番号 | 113928 | 建築確認番号 | |