広島市南区堀越2丁目 新築一戸建て No.E
- 物件価格
- 3,950万円
- 所在地
- 広島市南区堀越2丁目 No.E
- 交通
- JR山陽本線「向洋」 徒歩15分
- 最寄バス停
- 「東堀越」 徒歩6分
- 学校区
- 青崎小 / 大州中
※学校区は住所から自動判定したものであり、保証できる情報ではございません。正確な学校区はお問い合わせ下さい。
- 物件更新日:
- 2026年02月13日
セールスポイント
【南区堀越2丁目 新築戸建て住宅 No.E】
周辺は落ち着きのある閑静な住宅地♪
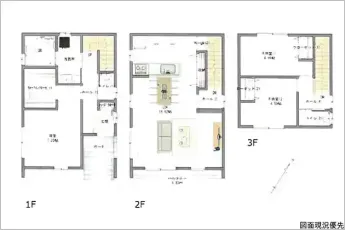
令和5年11月完成。3階建ての3LDK☆
LDKは2階にありプライバシーを守れます♪
採光と通風あふれる対面式キッチン♪
WICがあり満足の収納力☆
駐車場:2台可!
買物施設や教育施設は徒歩圏内♪
JR「向洋」駅まで徒歩15分!
◆◆同区画有◆◆
≪ご見学できます♪お気軽にお問い合わせください♪≫
~周辺環境~
・アルゾ青崎店:徒歩7分(約500m)
・セブン-イレブン 広島東青崎町店:徒歩9分(約650m)
・藤三向洋店:徒歩10分(約700m)
・公認堀越幼稚園:徒歩5分(約350m)
・広島市立青崎小学校:徒歩11分(約800m)
・堀越公園:徒歩4分(約260m)
《広島市南区エリアの新築戸建て住宅、不動産情報は「住むりえ」にお任せください》
*****
◇住まいのことなら≪住むりえ≫に何でもお気軽にご相談ください♪♪
◇お客様のニーズに最適な一戸建て、マンション、土地などの不動産情報をご提供致します!!
◇注文住宅をご検討の方やリノベーション、売却をお考えの方もお気軽にご相談ください♪♪
「人型アイコン」を地図上にドラッグすることで『Google Street View』に切り替わります。
※地図上の「対象地」は「日本、〒734-0052 広島県広島市南区堀越2丁目14−7」の場所を指しています。実際の場所ではない場合がございます。詳しくはお問い合わせください。
物件概要
| 種目 | 新築一戸建住宅 | ||
|---|---|---|---|
| 間取り | 3LDK | 間取り内訳 | |
| 土地面積 | 88.96㎡ | 私道面積 | |
| 建物面積 | 94.6㎡ | 建物構造規模 | 木造 3階建 |
| 築年月(竣工月) | 2023年11月 | 駐車場 | 有 |
| 建ぺい率/容積率 | 60%/160% | 都市計画 | 市街化区域 |
| 接道状況 | 南東2.9m 一方道路 | ||
| 地目 | |||
| 土地権利 | 所有権 | 地勢 | |
| 用途地域 | 第一種住居地域 | ||
| 現況 | 空家 | 取引態様 | 媒介 |
取引条件等
| 引渡し | 即時 |
|---|
その他
| 設備 | 温水洗浄便座、トイレ2ヶ所、追焚機能、浴室乾燥機、システムキッチン、カウンターキッチン、浄水器、食器洗浄乾燥機、ウォークインクローゼット、床下収納、洗髪洗面化粧台、都市ガス、上水道、下水道、モニタ付インターホン、駐車場2台分 | ||
|---|---|---|---|
| 特徴 | 日当り良好、24時間換気システム | ||
| 諸条件・相談 | セットバック済 ☆お客様のニーズに最適な一戸建て、マンション、土地などの不動産情報をご提供致します! | ||
| 情報登録日 | 2023年10月30日 | 情報更新予定日 | 2026年5月11日 |
| 物件番号 | 113936 | 建築確認番号 | 第R04認広建セ02309号 |