広島市南区東本浦町 新築一戸建て No.B
- 物件価格
- 4,550万円(↓8.1%値下がり)
- 所在地
- 広島市南区東本浦町 No.B
- 交通
- –
- 最寄バス停
- 「本浦入口」 徒歩2分
- 学校区
- 仁保小 / 仁保中
※学校区は住所から自動判定したものであり、保証できる情報ではございません。正確な学校区はお問い合わせ下さい。
- 物件更新日:
- 2026年04月25日
- 写真入れ替え日:
- 2024年03月14日
- 価格改定日:
- 2026年04月24日
セールスポイント
【南区東本浦町 新築戸建て住宅 No.B】
閑静な住宅地!平地の暮らし便利な街♪
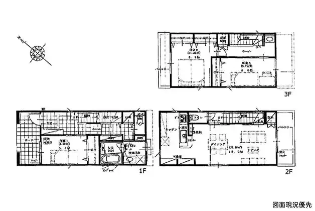
3階建て・3LDKの新築戸建て住宅登場☆
LDKは2階にありプライバシーを守れます♪
開放感あふれる対面式キッチンで居心地の良い住空間☆
全居室収納付♪♪
1階には広々とした洋室有♪
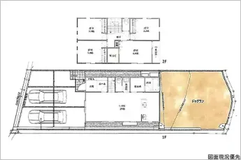
駐車場は並列2台可!(車種による)
公園も近く子育てにも適した住環境です☆
最寄りのバス停まで徒歩2分!
■■同区画有■■
≪ご見学できます♪お気軽にお問い合わせください♪≫
~周辺環境~
◇ローソン 広島東本浦町店:徒歩2分(160m)
◇ユアーズ 東本浦店:徒歩4分(260m)
◇ジュンテンドー仁保店:徒歩8分(550m)
◇広島市立仁保小学校:徒歩11分(800m)
◇広島市立仁保中学校:徒歩19分(1200m)
◇広島本浦郵便局:徒歩3分(190m)
《広島市南区エリアの新築戸建て住宅、不動産情報は「住むりえ」にお任せください》
*****
◇住まいのことなら≪住むりえ≫に何でもお気軽にご相談ください♪♪
◇お客様のニーズに最適な一戸建て、マンション、土地などの不動産情報をご提供致します!!
◇注文住宅をご検討の方やリノベーション、売却をお考えの方もお気軽にご相談ください♪♪
「人型アイコン」を地図上にドラッグすることで『Google Street View』に切り替わります。
※地図上の「対象地」は「日本、〒734-0025 広島県広島市南区東本浦町3−20」の場所を指しています。実際の場所ではない場合がございます。詳しくはお問い合わせください。
物件概要
| 種目 | 新築一戸建住宅 | ||
|---|---|---|---|
| 間取り | 3LDK | 間取り内訳 | |
| 土地面積 | 90.52㎡ | 私道面積 | |
| 建物面積 | 107.65㎡ | 建物構造規模 | 木造 3階建 |
| 築年月(竣工月) | 2024年06月 | 駐車場 | 有 |
| 建ぺい率/容積率 | 60%/200% | 都市計画 | 市街化区域 |
| 接道状況 | 北西5.3m 公道 一方道路 | ||
| 地目 | |||
| 土地権利 | 所有権 | 地勢 | 平坦 |
| 用途地域 | 第一種住居地域 | ||
| 現況 | 空家 | 取引態様 | 媒介 |
取引条件等
| 引渡し | 即時 |
|---|
その他
| 設備 | 温水洗浄便座、トイレ2ヶ所、追焚機能、浴室乾燥機、システムキッチン、カウンターキッチン、浄水器、食器洗浄乾燥機、洗髪洗面化粧台、都市ガス、上水道、下水道、モニタ付インターホン、駐車場2台分、全居室収納 | ||
|---|---|---|---|
| 特徴 | 日当り良好 | ||
| 諸条件・相談 | ☆お客様のニーズに最適な一戸建て、マンション、土地などの不動産情報をご提供致します! | ||
| 情報登録日 | 2024年2月27日 | 情報更新予定日 | 2026年5月11日 |
| 物件番号 | 117479 | 建築確認番号 | 第JE24BA1-34-0071号 |