広島市安佐南区伴東7丁目 中古一戸建て
- 物件価格
- 4,200万円(↓23.6%値下がり)
- 所在地
- 広島市安佐南区伴東7丁目
- 交通
- –
- 最寄バス停
- 「広陵学園入口」 徒歩1分
- 学校区
- 伴小/伴東小 / 伴中
※学校区は住所から自動判定したものであり、保証できる情報ではございません。正確な学校区はお問い合わせ下さい。
- 物件更新日:
- 2024年11月15日
- 写真入れ替え日:
- 2024年04月04日
- 価格改定日:
- 2024年09月12日
セールスポイント
【安佐南区伴東7丁目 未入居戸建て住宅】
周辺生活利便施設が充実♪♪
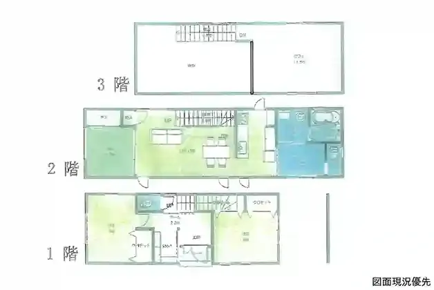
令和5年9月完成!3階建ての3LDK☆
LDKは2階にありプライバシーを守れます♪
◇オール電化住宅♪
◇太陽光発電搭載♪
◇お洗濯安心ランドリールーム有☆
◇エアコン1台付♪
◇多目的に使えるロフト♪
◇駐車場は2台可!
◇最寄りのバス停まで徒歩1分!
≪ご見学できます♪お気軽にお問い合わせください♪≫
~周辺環境~
・ジュンテンドー 沼田店:徒歩1分(72m)
・ゆめマート沼田:徒歩4分(260m)
・ローソン 広島沼田町伴店:徒歩5分(400m)
・ウォンツ 沼田伴店:徒歩10分(650m)
・アイグラン保育園伴:徒歩6分(400m)
・広島市立伴東小学校:徒歩10分(650m)
・広島市立伴中学校:徒歩22分(1400m)
《広島市安佐南区エリアの新築戸建て住宅、不動産情報は「住むりえ」にお任せください♪》
*****
◇住まいのことなら≪住むりえ≫に何でもお気軽にご相談ください♪♪
◇お客様のニーズに最適な一戸建て、マンション、土地などの不動産情報をご提供致します!!
◇注文住宅をご検討の方やリノベーション、売却をお考えの方もお気軽にご相談ください♪♪
「人型アイコン」を地図上にドラッグすることで『Google Street View』に切り替わります。
※地図上の「対象地」は「日本、〒731-3164 広島県広島市安佐南区伴東7丁目33−6」の場所を指しています。実際の場所ではない場合がございます。詳しくはお問い合わせください。
物件概要
| 種目 | 中古一戸建住宅 | ||
|---|---|---|---|
| 間取り | 3LDK | 間取り内訳 | |
| 土地面積 | 76.11㎡ | 私道面積 | |
| 建物面積 | 87.78㎡ | 建物構造規模 | 木造 3階建 |
| 築年月(竣工月) | 2023年09月 | 駐車場 | 有 |
| 建ぺい率/容積率 | 80%/200% | 都市計画 | 市街化区域 |
| 接道状況 | 南東12m 公道 接面16.1m 一方道路 | ||
| 地目 | |||
| 土地権利 | 所有権 | 地勢 | |
| 用途地域 | 近隣商業地域 | ||
| 現況 | 空家 | 取引態様 | 媒介 |
取引条件等
| 引渡し | 即時 |
|---|
その他
| 設備 | 温水洗浄便座、トイレ2ヶ所、システムキッチン、カウンターキッチン、IHクッキングヒーター、洗髪洗面化粧台、上水道、下水道、エアコン、モニタ付インターホン、駐車場2台分、ロフト、ランドリールーム | ||
|---|---|---|---|
| 特徴 | オール電化、太陽光発電5kwh付 | ||
| 諸条件・相談 | ☆お客様のニーズに最適な一戸建て、マンション、土地などの不動産情報をご提供致します! | ||
| 情報登録日 | 2024年3月1日 | 情報更新予定日 | 2026年5月2日 |
| 物件番号 | 117568 | 建築確認番号 | 第HP15-3757331号 |