広島市安佐南区祇園7丁目 新築一戸建て No.4
- 物件価格
- 4,350万円(↓2.9%値下がり)
- 所在地
- 広島市安佐南区祇園7丁目 No.4
- 交通
- JR可部線「古市橋」 徒歩11分
- 最寄バス停
- 「祇園5丁目」 徒歩11分
- 学校区
- 祇園小 / 祇園中
※学校区は住所から自動判定したものであり、保証できる情報ではございません。正確な学校区はお問い合わせ下さい。
- 物件更新日:
- 2026年03月25日
- 価格改定日:
- 2026年03月24日
セールスポイント
【安佐南区祇園7丁目 新築戸建て住宅 No.4】
周辺環境充実♪祇園7丁目の平地♪
3階建て・4LDKの新築戸建て住宅誕生☆
オール電化・エコキュートで快適♪
LDKは2階にありプライバシーを守れます♪
カウンターキッチンで家族の笑顔が増える家☆
バルコニーは2ヶ所あり快適空間♪
車庫付:2台可!
◇フラット35S(金利Aプラン)対応
≪ご見学できます♪お気軽にお問い合わせください♪≫
~周辺環境~
・セブンイレブン広島祇園8丁目店:徒歩7分(600m)
・ドン・キホーテ 広島祗園店:徒歩9分(750m)
・イオンモール広島祇園:徒歩11分(900m)
・あい保育園祇園:徒歩4分(300m)
・広島市立祇園小学校:徒歩12分(950m)
・広島市立祇園中学校:徒歩20分(1400m)
《広島市安佐南区エリアの新築戸建て住宅、不動産情報は「住むりえ」にお任せください》
*****
◇住まいのことなら≪住むりえ≫に何でもお気軽にご相談ください♪♪
◇お客様のニーズに最適な一戸建て、マンション、土地などの不動産情報をご提供致します!!
◇注文住宅をご検討の方やリノベーション、売却をお考えの方もお気軽にご相談ください♪♪
「人型アイコン」を地図上にドラッグすることで『Google Street View』に切り替わります。
※地図上の「対象地」は「日本、〒731-0138 広島県広島市安佐南区祇園7丁目29−5」の場所を指しています。実際の場所ではない場合がございます。詳しくはお問い合わせください。
物件概要
| 種目 | 新築一戸建住宅 | ||
|---|---|---|---|
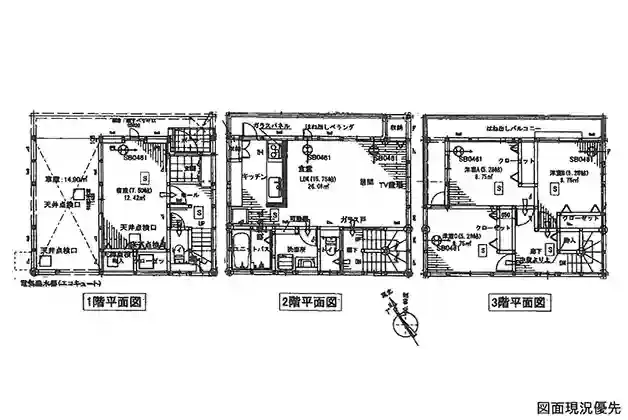
| 間取り | 4LDK | 間取り内訳 | |
| 土地面積 | 87.23㎡ | 私道面積 | |
| 建物面積 | 101.55㎡ | 建物構造規模 | 木造 3階建 |
| 築年月(竣工月) | 2024年07月 | 駐車場 | 有 |
| 建ぺい率/容積率 | 60%/200% | 都市計画 | 市街化区域 |
| 接道状況 | 北東4.25m 私道 位置指定有 北西5.22m 私道 | ||
| 地目 | |||
| 土地権利 | 所有権 | 地勢 | |
| 用途地域 | 第一種住居地域 | ||
| 現況 | 空家 | 取引態様 | 媒介 |
取引条件等
| 引渡し | 即時 |
|---|
その他
| 設備 | トイレ2ヶ所、システムキッチン、カウンターキッチン、IHクッキングヒーター、床下収納、洗髪洗面化粧台、上水道、下水道、モニタ付インターホン、駐車場2台分、バルコニー2ヶ所 | ||
|---|---|---|---|
| 特徴 | 日当り良好、オール電化、エコキュート、フラット35S(金利Aプラン) | ||
| 諸条件・相談 | 進入路位置指定道路持分有 ☆お客様のニーズに最適な一戸建て、マンション、土地などの不動産情報をご提供致します! | ||
| 情報登録日 | 2024年4月15日 | 情報更新予定日 | 2026年5月10日 |
| 物件番号 | 119047 | 建築確認番号 | R05認広建セ02683号 |