広島市西区鈴が峰町 中古一戸建て ☆リフォーム完了☆
- 物件価格
- 1,680万円(↓10.6%値下がり)
- 所在地
- 広島市西区鈴が峰町 ☆リフォーム完了☆
- 交通
- 広電宮島線「草津南」 徒歩8分
- 最寄バス停
- 「鈴が峰第2歩道橋」 徒歩4分
- 学校区
- 鈴が峰小 / 井口台中
※学校区は住所から自動判定したものであり、保証できる情報ではございません。正確な学校区はお問い合わせ下さい。
- 物件更新日:
- 2026年04月15日
- 価格改定日:
- 2026年04月14日
セールスポイント
【西区鈴が峰町 中古戸建て住宅】
~オーナーチェンジ物件~
緑豊か♪南向き♪日当り・通風良好♪
約39坪 軽量鉄骨造2階建て 昭和58年築 4LDK☆
◇令和6年6月リフォーム完了◇
機能的なワークスペースを実現した対面式キッチン♪
洗面・トイレは2ヶ所有‼
駐車場:1台可(月額1,000円)
静かな住環境で子育て世代にもピッタリ♪
JR、広電、バスの3WAYアクセス☆
≪ご見学できます♪お気軽にお問い合わせください♪≫
~周辺環境~
■セブンイレブン広島草津梅が台店:徒歩5分(約290m)
■マックスバリュエクスプレス 草津南店:徒歩10分(約750m)
■井口ルンビニー幼稚園:徒歩6分(約350m)
■広島市立鈴が峰小学校:徒歩10分(約650m)
■広島市立井口台中学校:徒歩18分(約1100m)
■力田病院:徒歩2分(約150m)
《広島市西区エリアの中古戸建て住宅、不動産情報は「住むりえ」にお任せください》
*****
◇住まいのことなら≪住むりえ≫に何でもお気軽にご相談ください♪♪
◇お客様のニーズに最適な一戸建て、マンション、土地などの不動産情報をご提供致します!!
◇注文住宅をご検討の方やリノベーション、売却をお考えの方もお気軽にご相談ください♪♪
「人型アイコン」を地図上にドラッグすることで『Google Street View』に切り替わります。
※地図上の「対象地」は「」の場所を指しています。実際の場所ではない場合がございます。詳しくはお問い合わせください。
物件概要
| 種目 | 中古一戸建住宅 | ||
|---|---|---|---|
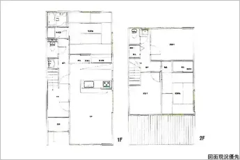
| 間取り | 4LDK | 間取り内訳 | |
| 土地面積 | 130.17㎡ | 私道面積 | |
| 建物面積 | 100.04㎡ | 建物構造規模 | 軽量鉄骨 2階建 |
| 築年月(竣工月) | 1983年08月 | 駐車場 | 有 1,000円 |
| 建ぺい率/容積率 | 40%/200% | 都市計画 | 市街化区域 |
| 接道状況 | 南 一方道路 | ||
| 地目 | |||
| 土地権利 | 所有権 | 地勢 | |
| 用途地域 | 第一種中高層住居専用地域 | ||
| 現況 | 賃貸中 | 取引態様 | 媒介 |
取引条件等
| 引渡し | 相談 |
|---|
その他
| 設備 | トイレ2ヶ所、システムキッチン、カウンターキッチン、洗髪洗面化粧台、都市ガス、上水道、下水道、洗面2箇所 | ||
|---|---|---|---|
| 特徴 | 日当り良好、セキスイハウス施工、令和6年6月リフォーム完了:クロス・絨毯・畳・洗面台・一部塗装・ベランダ屋根・ジョイントフロアタイル・ハウスクリーニング、オーナーチェンジ、月額:90,000円、利回り:6.06% | ||
| 諸条件・相談 | 管理組合費:月額2,000円、共有地:9644.93㎡ 持分1/138有 ☆お客様のニーズに最適な一戸建て、マンション、土地などの不動産情報をご提供致します! | ||
| 情報登録日 | 2024年7月5日 | 情報更新予定日 | 2026年4月29日 |
| 物件番号 | 121552 | 建築確認番号 | |