広島市安佐南区山本新町5丁目 中古一戸建て ☆リフォーム済☆
- 物件価格
- 2,780万円(↓6.7%値下がり)
- 所在地
- 広島市安佐南区山本新町5丁目 ☆リフォーム済☆
- 交通
- –
- 最寄バス停
- 「春日野北」 徒歩2分
- 学校区
- 春日野小 / 祇園中
※学校区は住所から自動判定したものであり、保証できる情報ではございません。正確な学校区はお問い合わせ下さい。
- 物件更新日:
- 2026年04月23日
セールスポイント
【安佐南区山本新町5丁目 中古戸建て住宅】
区画整理された美しい街並み♪
自然と共存する環境を備えた春日野団地☆
◇2026年4月瓦の全面やり替え・2024年3月リフォーム済◇
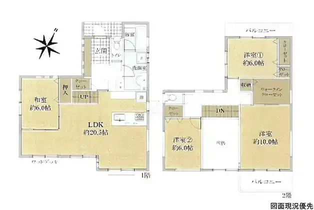
敷地約53坪♪平成19年築♪木造2階建て4LDK♪
南東側段落ちにつき日当り・通風良好♪
LDKは約20.5帖の広々とした間取り‼
リビングイン階段は家族の顔が見える設計☆
収納豊富♪♪
駐車場:2台可(車種による)
小学校や公園が近く子育て世代にも最適☆
≪ご見学できます♪お気軽にお問い合わせください♪≫
~周辺環境~
・春日野中央公園:徒歩3分(約210m)
・春日野まごころ保育園:徒歩7分(約500m)
・広島市立春日野小学校:徒歩5分(約400m)
・広島市立祇園中学校:徒歩43分(約3100m)
・たなべ春日野クリニック:徒歩7分(約550m)
《広島市安佐南区エリアの中古戸建て住宅、不動産情報は「住むりえ」にお任せください》
*****
◇住まいのことなら≪住むりえ≫に何でもお気軽にご相談ください♪♪
◇お客様のニーズに最適な一戸建て、マンション、土地などの不動産情報をご提供致します!!
◇注文住宅をご検討の方やリノベーション、売却をお考えの方もお気軽にご相談ください♪♪
「人型アイコン」を地図上にドラッグすることで『Google Street View』に切り替わります。
※地図上の「対象地」は「日本、〒731-0139 広島県広島市安佐南区山本新町5丁目5−31」の場所を指しています。実際の場所ではない場合がございます。詳しくはお問い合わせください。
物件概要
| 種目 | 中古一戸建住宅 | ||
|---|---|---|---|
| 間取り | 4LDK | 間取り内訳 | |
| 土地面積 | 177.8㎡ | 私道面積 | |
| 建物面積 | 120.89㎡ | 建物構造規模 | 木造 2階建 |
| 築年月(竣工月) | 2007年08月 | 駐車場 | 有 |
| 建ぺい率/容積率 | 50%/100% | 都市計画 | 市街化区域 |
| 接道状況 | 北西6m 公道 一方道路 | ||
| 地目 | |||
| 土地権利 | 所有権 | 地勢 | |
| 用途地域 | 第一種低層住居専用地域 | ||
| 現況 | 空家 | 取引態様 | 媒介 |
取引条件等
| 引渡し | 即時 |
|---|
その他
| 設備 | トイレ2ヶ所、システムキッチン、カウンターキッチン、ウォークインクローゼット、照明器具、都市ガス、上水道、下水道、モニタ付インターホン、駐車場2台分、リビング階段、バルコニー2ヶ所 | ||
|---|---|---|---|
| 特徴 | 日当り良好、吹抜、通風良好、住宅あんしん保証瑕疵保険加入済、2026年4月瓦の全面やり替え、2024年3月リフォーム済(全室クロス張替、畳表替、インターホン、照明ダウンライト交換) | ||
| 諸条件・相談 | 給湯器は契約後売主にて交換いたします ☆お客様のニーズに最適な一戸建て、マンション、土地などの不動産情報をご提供致します! | ||
| 情報登録日 | 2024年10月15日 | 情報更新予定日 | 2026年5月16日 |
| 物件番号 | 124643 | 建築確認番号 | |