廿日市市阿品台2丁目 中古一戸建て
- 物件価格
- 5,450万円(↓4.9%値下がり)
- 所在地
- 廿日市市阿品台2丁目
- 交通
- JR山陽本線「阿品」 徒歩14分
- 最寄バス停
- 「阿品台三丁目」 徒歩1分
- 学校区
- 阿品台東小 /-
※学校区は住所から自動判定したものであり、保証できる情報ではございません。正確な学校区はお問い合わせ下さい。
- 物件更新日:
- 2026年04月21日
セールスポイント
【廿日市市阿品台2丁目 中古戸建て住宅】
阿品台2丁目の閑静な地‼
約76坪の広い敷地が自慢の家♪
令和5年2月築の築浅物件☆
木造2階建て 2LDK 駐車2台可♪
オール電化で快適エコ生活♪
暮らしを豊かにする設備も充実!!
20帖以上の広々としたLDK☆
開放感があり使い勝手の良い対面式キッチン♪
収納豊富♪(SIC・WIC・パントリー等)
生活施設や教育施設は徒歩圏内♪
周辺は公園が多く子育て世代にもピッタリ☆
≪資料請求できます♪お問い合わせください♪≫
~周辺環境~
■ピュアークック アジナモール店:徒歩3分(約170m)
■ホームプラザナフコ阿品店:徒歩3分(約240m)
■つくし幼稚園:徒歩4分(約280m)
■廿日市市立阿品台東小学校:徒歩11分(約750m)
■廿日市市立阿品台中学校:徒歩11分(約700m)
■阿品台郵便局:徒歩5分(約300m)
《廿日市エリアの中古戸建て住宅、不動産情報は「住むりえ」にお任せください》
*****
◇住まいのことなら≪住むりえ≫に何でもお気軽にご相談ください♪♪
◇お客様のニーズに最適な一戸建て、マンション、土地などの不動産情報をご提供致します!!
◇注文住宅をご検討の方やリノベーション、売却をお考えの方もお気軽にご相談ください♪♪
「人型アイコン」を地図上にドラッグすることで『Google Street View』に切り替わります。
※地図上の「対象地」は「日本、〒738-0053 広島県廿日市市阿品台2丁目11−28」の場所を指しています。実際の場所ではない場合がございます。詳しくはお問い合わせください。
物件概要
| 種目 | 中古一戸建住宅 | ||
|---|---|---|---|
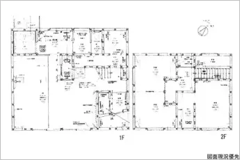
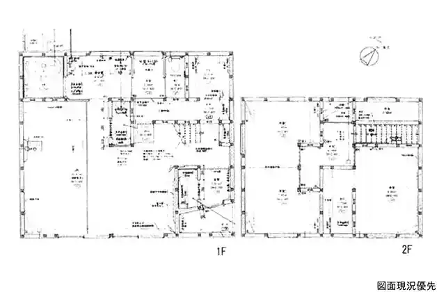
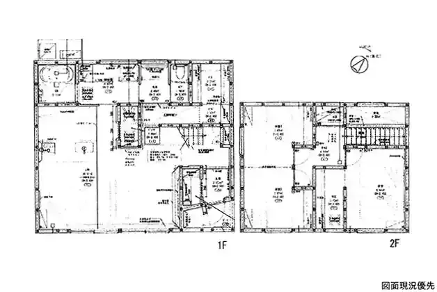
| 間取り | 2LDK | 間取り内訳 | |
| 土地面積 | 252.76㎡ | 私道面積 | |
| 建物面積 | 95.12㎡ | 建物構造規模 | 木造 2階建 |
| 築年月(竣工月) | 2023年02月 | 駐車場 | 有 |
| 建ぺい率/容積率 | 50%/100% | 都市計画 | 市街化区域 |
| 接道状況 | 南西19m 公道 北東8.5m 公道 二方道路(除角地) | ||
| 地目 | |||
| 土地権利 | 所有権 | 地勢 | |
| 用途地域 | 第一種低層住居専用地域 | ||
| 現況 | 所有者居住中 | 取引態様 | 媒介 |
取引条件等
| 引渡し | 相談 |
|---|
その他
| 設備 | 温水洗浄便座、浴室乾燥機、システムキッチン、IHクッキングヒーター、ウォークインクローゼット、上水道、下水道、モニタ付インターホン、駐車場2台分、ペニンシュラキッチン、パントリー、SIC、リビング階段 | ||
|---|---|---|---|
| 特徴 | 日当り良好、オール電化、(洋室を区切れば2LDK⇒3LDK)、ゴジョウの注文住宅、長期優良住宅、耐震等級3、BELS/省エネ基準適合 | ||
| 諸条件・相談 | ☆お客様のニーズに最適な一戸建て、マンション、土地などの不動産情報をご提供致します! | ||
| 情報登録日 | 2024年11月22日 | 情報更新予定日 | 2026年5月5日 |
| 物件番号 | 125840 | 建築確認番号 | |