広島市南区仁保新町1丁目 新築一戸建て
- 物件価格
- 4,000万円(↓6.5%値下がり)
- 所在地
- 広島市南区仁保新町1丁目
- 交通
- –
- 最寄バス停
- 「邇保姫神社入口」 徒歩3分
- 学校区
- 仁保小 / 仁保中
※学校区は住所から自動判定したものであり、保証できる情報ではございません。正確な学校区はお問い合わせ下さい。
- 物件更新日:
- 2025年04月18日
- 価格改定日:
- 2025年04月17日
セールスポイント
【南区仁保新町1丁目 新築戸建て住宅】
平坦地♪利便性良好♪
限られた敷地を活用した3階建て住宅☆
2LDK+S♪車庫付き(1台可)♪
LDKは2階にありプライバシーを守れます♪
収納力豊富なWIC設置♪
小学校や公園が近くお子様にも安心の住環境☆
スーパー、コンビニ、銀行も近く、生活便利♪♪
≪資料請求できます♪お問い合わせください♪≫
~周辺環境~
・ローソン 広島仁保新町店:徒歩3分(約210m)
・アルゾSELECT本浦店:徒歩5分(約400m)
・ジュンテンドー 仁保店:徒歩2分(約110m)
・広島信用金庫 仁保支店:徒歩3分(約190m)
・広島市立仁保小学校:徒歩3分(約230m)
・広島市立仁保中学校:徒歩17分(約1000m)
・仁保新町公園:徒歩4分(約280m)
《広島市南区エリアの新築戸建て住宅、不動産情報は「住むりえ」にお任せください》
*****
◇住まいのことなら≪住むりえ≫に何でもお気軽にご相談ください♪♪
◇お客様のニーズに最適な一戸建て、マンション、土地などの不動産情報をご提供致します!!
◇注文住宅をご検討の方やリノベーション、売却をお考えの方もお気軽にご相談ください♪♪
「人型アイコン」を地図上にドラッグすることで『Google Street View』に切り替わります。
※地図上の「対象地」は「日本、〒734-0024 広島県広島市南区仁保新町1丁目9−17」の場所を指しています。実際の場所ではない場合がございます。詳しくはお問い合わせください。
物件概要
| 種目 | 新築一戸建住宅 | ||
|---|---|---|---|
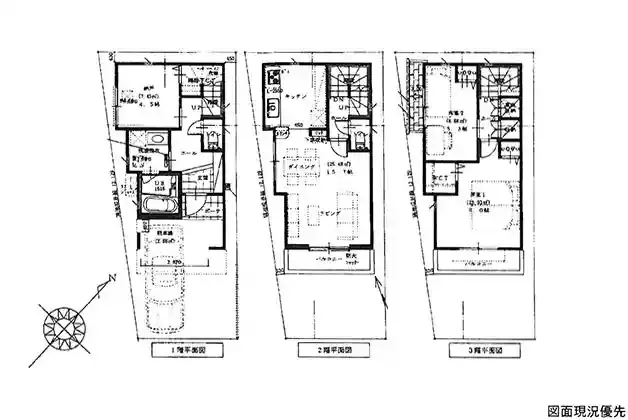
| 間取り | 2SLDK | 間取り内訳 | |
| 土地面積 | 60.65㎡ | 私道面積 | |
| 建物面積 | 91.13㎡ | 建物構造規模 | 木造 3階建 |
| 築年月(竣工月) | 2025年02月 | 駐車場 | 有 |
| 建ぺい率/容積率 | 60%/200% | 都市計画 | 市街化区域 |
| 接道状況 | 南東4.01m 公道 一方道路 | ||
| 地目 | |||
| 土地権利 | 所有権 | 地勢 | |
| 用途地域 | 第一種住居地域 | ||
| 現況 | 未完成 | 取引態様 | 媒介 |
取引条件等
| 引渡し | 相談 |
|---|
その他
| 設備 | トイレ2ヶ所、システムキッチン、ウォークインクローゼット、洗髪洗面化粧台、都市ガス、上水道、下水道、モニタ付インターホン、納戸 | ||
|---|---|---|---|
| 特徴 | 日当り良好 | ||
| 諸条件・相談 | ☆お客様のニーズに最適な一戸建て、マンション、土地などの不動産情報をご提供致します! | ||
| 情報登録日 | 2024年12月6日 | 情報更新予定日 | 2026年5月11日 |
| 物件番号 | 126219 | 建築確認番号 | 第JE24BA1-34-0370号 |