広島市安佐南区上安7丁目 新築一戸建て No.A
- 物件価格
- 2,780万円(↓6.7%値下がり)
- 所在地
- 広島市安佐南区上安7丁目 No.A
- 交通
- AL「上安」 徒歩17分
- 最寄バス停
- 「上萩原」 徒歩5分
- 学校区
- 安北小 / 高取北中
※学校区は住所から自動判定したものであり、保証できる情報ではございません。正確な学校区はお問い合わせ下さい。
- 物件更新日:
- 2026年03月23日
- 価格改定日:
- 2025年06月10日
セールスポイント
【安佐南区上安7丁目 新築戸建て住宅 No.A】
自然と安らぎに満ちた緑豊かな住環境♪
令和7年12月完成!敷地約52坪!2階建て3LDK☆
省エネ、安全性を実感できるオール電化♪
LDKは広々約18.6帖♪
対面式キッチンで居心地の良い住空間☆
収納豊富♪(SIC・WIC・FCL等)
駐車場:3台可(車種による)
公園徒歩3分♪のびのびと子育てができます♪
最寄りのバス停まで徒歩5分‼
◇◇同区画:No.B(2.760万円)有◇◇
≪ご見学できます♪お気軽にお問い合わせください♪≫
~周辺環境~
・デイリーヤマザキ 広島上安店:徒歩7分(約550m)
・セブンイレブン 広島上安店:徒歩17分(約1400m)
・広島市立安北小学校:徒歩18分(約1300m)
・広島市立高取北中学校:徒歩22分(約1500m)
・上安第二公園:徒歩3分(約200m)
《広島市安佐南区エリアの新築戸建て住宅、不動産情報は「住むりえ」にお任せください》
*****
◇住まいのことなら≪住むりえ≫に何でもお気軽にご相談ください♪♪
◇お客様のニーズに最適な一戸建て、マンション、土地などの不動産情報をご提供致します!!
◇注文住宅をご検討の方やリノベーション、売却をお考えの方もお気軽にご相談ください♪♪
「人型アイコン」を地図上にドラッグすることで『Google Street View』に切り替わります。
※地図上の「対象地」は「日本、〒731-0154 広島県広島市安佐南区上安7丁目761」の場所を指しています。実際の場所ではない場合がございます。詳しくはお問い合わせください。
物件概要
| 種目 | 新築一戸建住宅 | ||
|---|---|---|---|
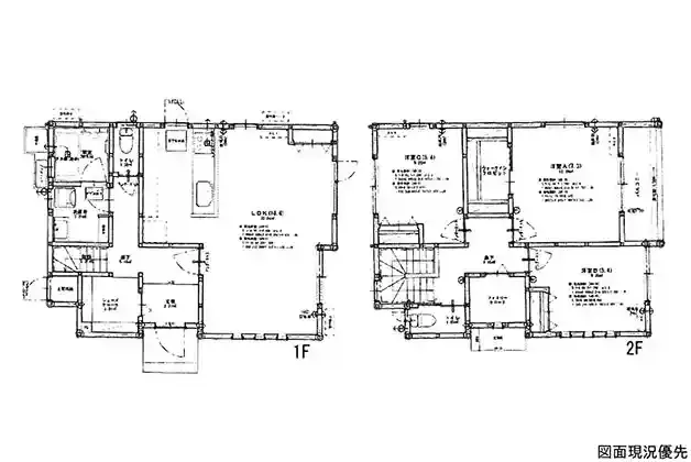
| 間取り | 3LDK | 間取り内訳 | |
| 土地面積 | 174.71㎡ | 私道面積 | |
| 建物面積 | 104.9㎡ | 建物構造規模 | 木造 2階建 |
| 築年月(竣工月) | 2025年12月 | 駐車場 | 有 |
| 建ぺい率/容積率 | 50%/100% | 都市計画 | 市街化区域 |
| 接道状況 | 南西3.5m 公道 | ||
| 地目 | |||
| 土地権利 | 所有権 | 地勢 | |
| 用途地域 | 第一種低層住居専用地域 | ||
| 現況 | 空家 | 取引態様 | 媒介 |
取引条件等
| 引渡し | 即時 |
|---|
その他
| 設備 | トイレ2ヶ所、システムキッチン、カウンターキッチン、IHクッキングヒーター、ウォークインクローゼット、床下収納、洗髪洗面化粧台、上水道、下水道、モニタ付インターホン、駐車場3台分、SIC、土間収納、ファミリークローク | ||
|---|---|---|---|
| 特徴 | 日当り良好、オール電化 | ||
| 諸条件・相談 | ☆お客様のニーズに最適な一戸建て、マンション、土地などの不動産情報をご提供致します! | ||
| 情報登録日 | 2025年4月22日 | 情報更新予定日 | 2026年5月12日 |
| 物件番号 | 130438 | 建築確認番号 | 第R06認広建セ02910号 |