廿日市市対厳山3丁目 新築一戸建て No.B
- 物件価格
- 4,600万円(↓1.1%値下がり)
- 所在地
- 廿日市市対厳山3丁目 No.B
- 交通
- –
- 最寄バス停
- 「グリーンハイツ」 徒歩5分
- 学校区
- 大野東小 / 大野東中
※学校区は住所から自動判定したものであり、保証できる情報ではございません。正確な学校区はお問い合わせ下さい。
- 物件更新日:
- 2026年01月16日
- 写真入れ替え日:
- 2025年05月22日
- 価格改定日:
- 2026年01月15日
セールスポイント
【廿日市市対厳山3丁目 新築戸建て住宅 No.B】
海と山の風が生み出す癒しの住環境♪
敷地約63坪!2階建て3LDKの新築戸建て登場☆
充実設備が標準仕様!!
・オール電化、エコキュート♪
・省令準耐火仕様♪
・リビング上部に大空間の吹抜♪
・対面式キッチン♪
・エアコン2基設置♪
・ミーレ洗濯乾燥機付♪
・駐車場:3台可(並列)
・公園すぐそば♪子育て環境良好♪
・最寄りのバス停まで徒歩5分♪
■■同区画有■■
≪ご見学できます♪お気軽にお問い合わせください♪≫
~周辺環境~
・セブン-イレブン 廿日市大野更地店:徒歩12分(約900m)
・ピュアークック青葉台店:徒歩16分(約1100m)
・かえで幼稚園:徒歩9分(約600m)
・廿日市市立大野東小学校:徒歩20分(約1500m)
・廿日市市立大野東中学校:徒歩19分(約1400m)
・対厳山1号公園:徒歩2分(約140m)
《廿日市エリアの新築戸建て住宅、不動産情報は「住むりえ」にお任せください》
*****
◇住まいのことなら≪住むりえ≫に何でもお気軽にご相談ください♪♪
◇お客様のニーズに最適な一戸建て、マンション、土地などの不動産情報をご提供致します!!
◇注文住宅をご検討の方やリノベーション、売却をお考えの方もお気軽にご相談ください♪♪
「人型アイコン」を地図上にドラッグすることで『Google Street View』に切り替わります。
※地図上の「対象地」は「日本、〒739-0402 広島県廿日市市対厳山3丁目7−7」の場所を指しています。実際の場所ではない場合がございます。詳しくはお問い合わせください。
物件概要
| 種目 | 新築一戸建住宅 | ||
|---|---|---|---|
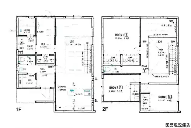
| 間取り | 3LDK | 間取り内訳 | |
| 土地面積 | 209.91㎡ | 私道面積 | |
| 建物面積 | 115.95㎡ | 建物構造規模 | 木造 2階建 |
| 築年月(竣工月) | 2025年05月 | 駐車場 | 有 |
| 建ぺい率/容積率 | 50%/80% | 都市計画 | 市街化区域 |
| 接道状況 | 北西6m 公道 一方道路 | ||
| 地目 | 宅地 | ||
| 土地権利 | 所有権 | 地勢 | |
| 用途地域 | 第一種低層住居専用地域 | ||
| 現況 | 空家 | 取引態様 | 媒介 |
取引条件等
| 引渡し | 相談 |
|---|
その他
| 設備 | 温水洗浄便座、トイレ2ヶ所、追焚機能、浴室乾燥機、システムキッチン、カウンターキッチン、IHクッキングヒーター、浄水器、食器洗浄乾燥機、床下収納、洗髪洗面化粧台、照明器具、電気、上水道、下水道、複層ガラス、エアコン、モニタ付インターホン、防犯カメラ、駐車場3台分、SIC、カップボード、リビング階段、ミーレ洗濯乾燥機、玄関手洗器、宅配Box、縦型ブラインド、ロールスクリーン、エコカラット | ||
|---|---|---|---|
| 特徴 | 日当り良好、吹抜、オール電化、エコキュート、省令準耐火仕様、フラット35S金利Aプラン対応 | ||
| 諸条件・相談 | ☆お客様のニーズに最適な一戸建て、マンション、土地などの不動産情報をご提供致します! | ||
| 情報登録日 | 2025年5月13日 | 情報更新予定日 | 2026年5月12日 |
| 物件番号 | 131005 | 建築確認番号 | 第R06認広建セ01157号 |