広島市佐伯区八幡東2丁目 新築一戸建て No.1
- 物件価格
- 2,898万円(↓9.4%値下がり)
- 所在地
- 広島市佐伯区八幡東2丁目 No.1
- 交通
- –
- 最寄バス停
- 「中地上」 徒歩3分
- 学校区
- 八幡東小 / 三和中
※学校区は住所から自動判定したものであり、保証できる情報ではございません。正確な学校区はお問い合わせ下さい。
- 物件更新日:
- 2025年10月21日
- 価格改定日:
- 2025年10月20日
セールスポイント
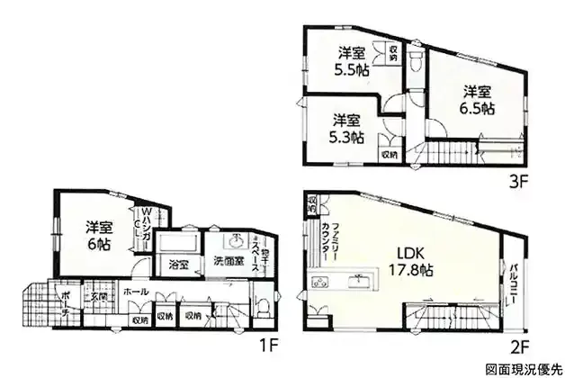
【佐伯区八幡東2丁目 新築戸建て住宅 No.1】
八幡東の閑静な住宅街♪
2024年11月完成!3階建ての4LDK☆
経済的なエコジョーズ採用♪♪
LDKは2階にありプライバシーを守れます♪
広い洗面室には物干スペース完備♪
収納充実プラン♪
駐車場:並列3台可(車種による)
平坦地♪利便性の良い立地♪
子育て世代にも最適☆
◇◇同区画有◇◇
≪ご見学できます♪お気軽にお問い合わせください♪≫
~周辺環境~
・セブン-イレブン 広島八幡店:徒歩4分(約270m)
・ジュンテンドー 五日市店:徒歩8分(約550m)
・アルゾ五日市利松店:徒歩11分(約750m)
・五日市すみれこども園:徒歩2分(約160m)
・広島市立八幡東小学校:徒歩8分(約600m)
・広島市立三和中学校:徒歩19分(約1400m)
・生協さえき病院:徒歩6分(約400m)
《広島市佐伯区エリアの新築戸建て住宅、不動産情報は「住むりえ」にお任せください♪》
*****
◇住まいのことなら≪住むりえ≫に何でもお気軽にご相談ください♪♪
◇お客様のニーズに最適な一戸建て、マンション、土地などの不動産情報をご提供致します!!
◇注文住宅をご検討の方やリノベーション、売却をお考えの方もお気軽にご相談ください♪♪
「人型アイコン」を地図上にドラッグすることで『Google Street View』に切り替わります。
※地図上の「対象地」は「日本、〒731-5115 広島県広島市佐伯区八幡東2丁目4−23」の場所を指しています。実際の場所ではない場合がございます。詳しくはお問い合わせください。
物件概要
| 種目 | 新築一戸建住宅 | ||
|---|---|---|---|
| 間取り | 4LDK | 間取り内訳 | |
| 土地面積 | 91.82㎡ | 私道面積 | |
| 建物面積 | 100㎡ | 建物構造規模 | 木造 3階建 |
| 築年月(竣工月) | 2024年11月 | 駐車場 | 有 |
| 建ぺい率/容積率 | 60%/160% | 都市計画 | 市街化区域 |
| 接道状況 | 西4m 私道 位置指定有 一方道路 | ||
| 地目 | |||
| 土地権利 | 所有権 | 地勢 | |
| 用途地域 | 第二種中高層住居専用地域 | ||
| 現況 | 空家 | 取引態様 | 媒介 |
取引条件等
| 引渡し | 即時 |
|---|
その他
| 設備 | トイレ2ヶ所、システムキッチン、カウンターキッチン、洗髪洗面化粧台、都市ガス、下水道、モニタ付インターホン、駐車場3台分、収納充実、物干しスペース | ||
|---|---|---|---|
| 特徴 | エコジョーズ | ||
| 諸条件・相談 | 外構を含めた完成年月:2025年2月完成済 ☆お客様のニーズに最適な一戸建て、マンション、土地などの不動産情報をご提供致します! | ||
| 情報登録日 | 2025年5月26日 | 情報更新予定日 | 2026年5月6日 |
| 物件番号 | 131424 | 建築確認番号 | 第R06認広建セ00251号 |