広島市佐伯区観音台4丁目 中古一戸建て
- 物件価格
- 2,599万円
- 所在地
- 広島市佐伯区観音台4丁目
- 交通
- –
- 最寄バス停
- 「東観音台上」 徒歩3分
- 学校区
- 五日市観音西小 / 五日市観音中
※学校区は住所から自動判定したものであり、保証できる情報ではございません。正確な学校区はお問い合わせ下さい。
- 物件更新日:
- 2026年05月01日
- 写真入れ替え日:
- 2026年05月01日
セールスポイント
【佐伯区観音台4丁目 中古戸建て住宅】
観音台の閑静な住宅街♪
耐震性と耐久性の高い軽量鉄骨の家!
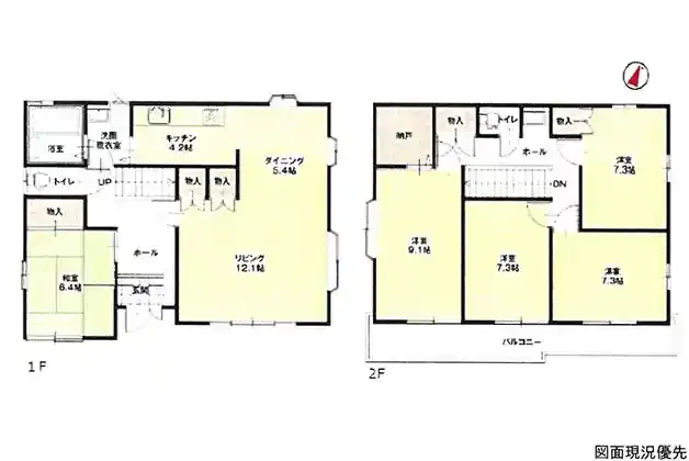
敷地約56坪 平成2年築 2階建て5LDK☆
令和8年4月リフォーム完了♪
広々LDKで家族の安らぎ空間が実現♪
色々なタイプの収納があり便利♪
駐車スペース:2台可(車種による)
周辺は公園が多く緑豊か。子育てにも最適☆
≪ご見学できます♪お気軽にお問い合わせください♪≫
~周辺環境~
・ファミリーマート 五日市城山南店:徒歩17分(約1300m)
・クスリ岩崎チェーン 五日市城山店:徒歩19分(約1500m)
・フレスタ波出石店:徒歩22分(約1700m)
・観音台北第四公園:徒歩2分(約140m)
・広島市立五日市観音西小学校:徒歩16分(約1100m)
・広島市立五日市観音中学校:徒歩19分(約1300m)
《広島市佐伯区エリアの中古戸建て住宅、不動産情報は「住むりえ」にお任せください》
*****
◇住まいのことなら≪住むりえ≫に何でもお気軽にご相談ください♪♪
◇お客様のニーズに最適な一戸建て、マンション、土地などの不動産情報をご提供致します!!
◇注文住宅をご検討の方やリノベーション、売却をお考えの方もお気軽にご相談ください♪♪
「人型アイコン」を地図上にドラッグすることで『Google Street View』に切り替わります。
※地図上の「対象地」は「日本、〒731-5157 広島県広島市佐伯区観音台4丁目15−9」の場所を指しています。実際の場所ではない場合がございます。詳しくはお問い合わせください。
物件概要
| 種目 | 中古一戸建住宅 | ||
|---|---|---|---|
| 間取り | 5LDK | 間取り内訳 | |
| 土地面積 | 186.96㎡ | 私道面積 | |
| 建物面積 | 142.57㎡ | 建物構造規模 | 軽量鉄骨 2階建 |
| 築年月(竣工月) | 1990年12月 | 駐車場 | 有 |
| 建ぺい率/容積率 | 50%/100% | 都市計画 | 市街化区域 |
| 接道状況 | 南東6m 公道 一方道路 | ||
| 地目 | |||
| 土地権利 | 所有権 | 地勢 | |
| 用途地域 | 第一種低層住居専用地域 | ||
| 現況 | 空家 | 取引態様 | 媒介 |
取引条件等
| 引渡し | 相談 |
|---|
その他
| 設備 | 温水洗浄便座、トイレ2ヶ所、追焚機能、浴室乾燥機、システムキッチン、IHクッキングヒーター、床下収納、洗髪洗面化粧台、電気、都市ガス、上水道、下水道、モニタ付インターホン、庭、駐車場2台分、納戸、収納豊富 | ||
|---|---|---|---|
| 特徴 | 日当り良好、令和8年4月リフォーム完了:玄関ドア・トイレ・洗面化粧台・ユニットバス・キッチン・スイッチ・コンセントプレート・シーリング・ダウンライト・給湯器交換、一部建具変更、カウンター解体、カップボード撤去、火災報知器設置、クロス・クッションフロア貼替、フロアタイル上張、畳表替、襖・障子張替、外構工事、外壁タイル一部補修 | ||
| 諸条件・相談 | ☆お客様のニーズに最適な一戸建て、マンション、土地などの不動産情報をご提供致します! | ||
| 情報登録日 | 2025年6月10日 | 情報更新予定日 | 2026年5月15日 |
| 物件番号 | 131916 | 建築確認番号 | |