廿日市市阿品台5丁目 中古一戸建て
- 物件価格
- 1,900万円
- 所在地
- 廿日市市阿品台5丁目
- 交通
- JR山陽本線「阿品」 徒歩21分
- 最寄バス停
- –
- 学校区
- 阿品台東小 /-
※学校区は住所から自動判定したものであり、保証できる情報ではございません。正確な学校区はお問い合わせ下さい。
- 物件更新日:
- 2025年09月11日
セールスポイント
【廿日市市阿品台5丁目 中古戸建て住宅】
阿品台5丁目の閑静な住宅地♪
敷地約62坪 木造2階建て 昭和63年築 4LDK☆
2001年5月リフォーム歴有:外壁塗装工事
駐車場:2台可‼
緑に囲まれた子育てにも最適な立地♪
インフラ充実☆(学校・スーパー・病院等)
≪資料請求できます♪お問い合わせください♪≫
~周辺環境~
・ピュアークック アジナモール店:徒歩8分(約650m)
・ナフコ 阿品店:徒歩10分(約750m)
・阿品台東保育園:徒歩9分(約600m)
・廿日市市立阿品台東小学校:徒歩9分(約650m)
・廿日市市立阿品台中学校:徒歩9分(約700m)
・阿品公園:徒歩3分(約230m)
《廿日市エリアの中古戸建て住宅、不動産情報は「住むりえ」にお任せください》
*****
◇住まいのことなら≪住むりえ≫に何でもお気軽にご相談ください♪♪
◇お客様のニーズに最適な一戸建て、マンション、土地などの不動産情報をご提供致します!!
◇注文住宅をご検討の方やリノベーション、売却をお考えの方もお気軽にご相談ください♪♪
「人型アイコン」を地図上にドラッグすることで『Google Street View』に切り替わります。
※地図上の「対象地」は「日本、〒738-0053 広島県廿日市市阿品台5丁目8−8」の場所を指しています。実際の場所ではない場合がございます。詳しくはお問い合わせください。
物件概要
| 種目 | 中古一戸建住宅 | ||
|---|---|---|---|
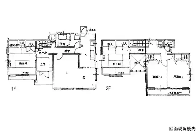
| 間取り | 4LDK | 間取り内訳 | |
| 土地面積 | 207.42㎡ | 私道面積 | |
| 建物面積 | 119.62㎡ | 建物構造規模 | 木造 2階建 |
| 築年月(竣工月) | 1988年07月 | 駐車場 | 有 |
| 建ぺい率/容積率 | 50%/100% | 都市計画 | 市街化区域 |
| 接道状況 | 南 公道 一方道路 | ||
| 地目 | 宅地 | ||
| 土地権利 | 所有権 | 地勢 | |
| 用途地域 | 第一種低層住居専用地域 | ||
| 現況 | 所有者居住中 | 取引態様 | 媒介 |
取引条件等
| 引渡し | 相談 |
|---|
その他
| 設備 | トイレ2ヶ所、都市ガス、上水道、下水道、駐車場2台分 | ||
|---|---|---|---|
| 特徴 | 日当り良好、2×4工法、2001年5月リフォーム歴有:外壁塗装工事 | ||
| 諸条件・相談 | 閑静な住宅地 ☆お客様のニーズに最適な一戸建て、マンション、土地などの不動産情報をご提供致します! | ||
| 情報登録日 | 2025年9月4日 | 情報更新予定日 | 2026年4月13日 |
| 物件番号 | 134516 | 建築確認番号 | |