広島市佐伯区五日市中央5丁目 新築一戸建て No.2
- 物件価格
- 4,380万円
- 所在地
- 広島市佐伯区五日市中央5丁目 No.2
- 交通
- –
- 最寄バス停
- 「千同橋」 徒歩5分
- 学校区
- 五日市中央小 / 五日市中
※学校区は住所から自動判定したものであり、保証できる情報ではございません。正確な学校区はお問い合わせ下さい。
- 物件更新日:
- 2026年02月20日
- 写真入れ替え日:
- 2026年02月20日
セールスポイント
【佐伯区五日市中央5丁目 新築戸建て住宅 No.2】
平坦地でお出かけラクラク♪
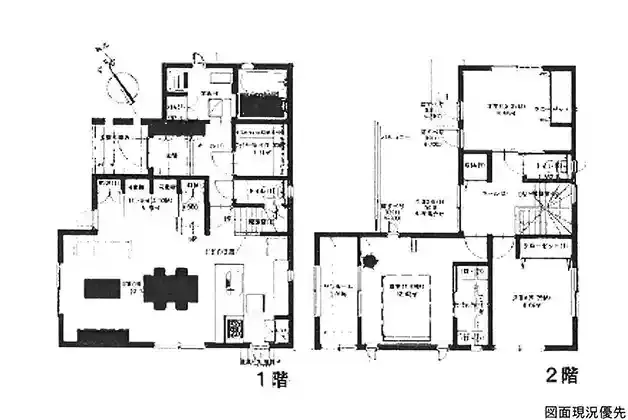
敷地約36坪 2階建て3LDKの新築戸建て登場☆
オール電化・エコキュート採用♪♪
充実した設備が標準仕様!
1階LDには3.5帖相当のホビールーム有♪
開放感あふれるフルフラット採用♪
収納豊富♪
お洗濯安心サンルーム完備☆
駐車場:2台可‼
周辺環境充実♪コイン通りまで徒歩圏内♪
≪ご見学できます♪お気軽にお問い合わせください♪≫
◇◇同区画:No.1(4.280万円)有◇◇
~周辺環境~
・ローソン・ポプラ 五日市中央北店:徒歩5分(約400m)
・ゆめマート五日市:徒歩8分(約600m)
・あいぐらん保育園五日市:徒歩5分(約350m)
・広島市立五日市中央小学校:徒歩11分(約800m)
・広島市立五日市中学校:徒歩3分(約230m)
・中央第二公園:徒歩3分(約190m)
《広島市佐伯区エリアの新築戸建て住宅、不動産情報は「住むりえ」にお任せください》
*****
◇住まいのことなら≪住むりえ≫に何でもお気軽にご相談ください♪♪
◇お客様のニーズに最適な一戸建て、マンション、土地などの不動産情報をご提供致します!!
◇注文住宅をご検討の方やリノベーション、売却をお考えの方もお気軽にご相談ください♪♪
「人型アイコン」を地図上にドラッグすることで『Google Street View』に切り替わります。
※地図上の「対象地」は「日本、〒731-5128 広島県広島市佐伯区五日市中央5丁目5−35−2 セジュール大田C」の場所を指しています。実際の場所ではない場合がございます。詳しくはお問い合わせください。
物件概要
| 種目 | 新築一戸建住宅 | ||
|---|---|---|---|
| 間取り | 3LDK | 間取り内訳 | |
| 土地面積 | 121.51㎡ | 私道面積 | |
| 建物面積 | 105.16㎡ | 建物構造規模 | 木造 2階建 |
| 築年月(竣工月) | 2026年02月 | 駐車場 | 有 |
| 建ぺい率/容積率 | 60%/160% | 都市計画 | 市街化区域 |
| 接道状況 | 西3.74m 私道 位置指定有 一方道路 | ||
| 地目 | |||
| 土地権利 | 所有権 | 地勢 | 平坦 |
| 用途地域 | 第一種住居地域 | ||
| 現況 | 空家 | 取引態様 | 媒介 |
取引条件等
| 引渡し | 相談 |
|---|
その他
| 設備 | 温水洗浄便座、トイレ2ヶ所、追焚機能、浴室乾燥機、システムキッチン、カウンターキッチン、IHクッキングヒーター、食器洗浄乾燥機、ウォークインクローゼット、床下収納、洗髪洗面化粧台、電気、上水道、下水道、複層ガラス、モニタ付インターホン、駐車場2台分、ホビールーム(3.5帖)、FCL(2帖)、サンルーム、パーティーキッチン、カップボード、リビング階段、玄関ドア電子錠、外構付 | ||
|---|---|---|---|
| 特徴 | オール電化、エコキュート、省エネ基準適合住宅、制振ダンパー(住友ゴムMAMORY)、外壁光セラ(KMEW)、フラット35S(金利Bプラン)対応、瑕疵担保責任保険(まもりすまい保険) | ||
| 諸条件・相談 | ☆お客様のニーズに最適な一戸建て、マンション、土地などの不動産情報をご提供致します! | ||
| 情報登録日 | 2025年9月8日 | 情報更新予定日 | 2026年5月26日 |
| 物件番号 | 134651 | 建築確認番号 | 第R07認広建セ00611号 |