廿日市市宮園4丁目 中古一戸建て ☆リノベーション☆
- 物件価格
- 3,500万円(↓9.1%値下がり)
- 所在地
- 廿日市市宮園4丁目 ☆リノベーション☆
- 交通
- –
- 最寄バス停
- 「宮園中央」 徒歩6分
- 学校区
- 宮園小 /-
※学校区は住所から自動判定したものであり、保証できる情報ではございません。正確な学校区はお問い合わせ下さい。
- 物件更新日:
- 2026年02月08日
- 写真入れ替え日:
- 2025年10月07日
- 価格改定日:
- 2026年02月07日
セールスポイント
【廿日市市宮園4丁目 中古戸建て住宅】
宮園の閑静な住宅街♪
☆2025年3月リノベーション☆
敷地約58坪 部屋数豊富な5LDK♪
RC造のため地震・火災・台風にも強く安心‼
オール電化で快適エコ生活♪♪
全居室6帖以上のゆったりとした空間♪
屋上バルコニー付のモダンな外観☆
駐車場:2台可‼
小学校や公園近く♪子育て世代にも最適♪
≪ご見学できます♪お気軽にお問い合わせください♪≫
~周辺環境~
・ローソン 広島廿日市宮園店:徒歩9分(約700m)
・コーナン廿日市陽光台店:徒歩16分(約1100m)
・廿日市宮園郵便局:徒歩9分(約700m)
・宮園保育園:徒歩10分(約750m)
・廿日市市立宮園小学校:徒歩7分(約500m)
・宮園第八公園:徒歩1分(約81m)
《廿日市エリアの中古戸建て住宅、不動産情報は「住むりえ」にお任せください》
*****
◇住まいのことなら≪住むりえ≫に何でもお気軽にご相談ください♪♪
◇お客様のニーズに最適な一戸建て、マンション、土地などの不動産情報をご提供致します!!
◇注文住宅をご検討の方やリノベーション、売却をお考えの方もお気軽にご相談ください♪♪
「人型アイコン」を地図上にドラッグすることで『Google Street View』に切り替わります。
※地図上の「対象地」は「日本、〒738-0035 広島県廿日市市宮園4丁目6−16」の場所を指しています。実際の場所ではない場合がございます。詳しくはお問い合わせください。
物件概要
| 種目 | 中古一戸建住宅 | ||
|---|---|---|---|
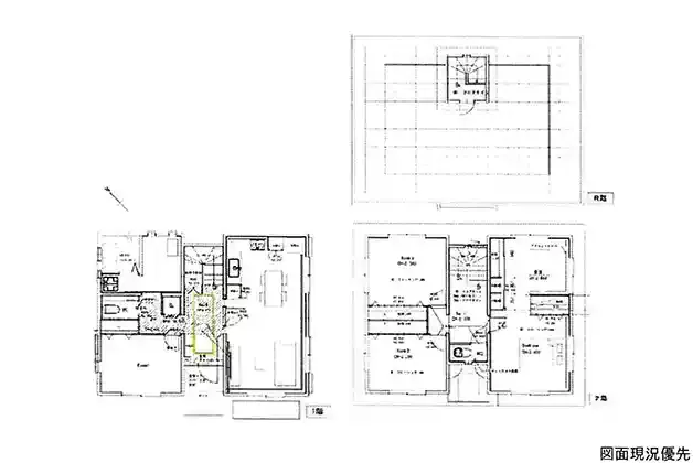
| 間取り | 5LDK | 間取り内訳 | |
| 土地面積 | 192.96㎡ | 私道面積 | |
| 建物面積 | 125.86㎡ | 建物構造規模 | RC 2階建 |
| 築年月(竣工月) | 1988年04月 | 駐車場 | 有 |
| 建ぺい率/容積率 | 50%/100% | 都市計画 | 市街化区域 |
| 接道状況 | 南西4.8m 公道 接面12m 一方道路 | ||
| 地目 | |||
| 土地権利 | 所有権 | 地勢 | |
| 用途地域 | 第一種低層住居専用地域 | ||
| 現況 | 空家 | 取引態様 | 媒介 |
取引条件等
| 引渡し | 即時 |
|---|
その他
| 設備 | 温水洗浄便座、トイレ2ヶ所、浴室乾燥機、システムキッチン、IHクッキングヒーター、洗髪洗面化粧台、都市ガス、上水道、下水道、駐車場2台分、屋上バルコニー | ||
|---|---|---|---|
| 特徴 | 日当り良好、オール電化、2025年3月リノベーション:水回り(キッチン・浴室・トイレ・洗面所)、内装(床・壁・天井・建具全て)、外壁塗装、建築家監修 | ||
| 諸条件・相談 | 接道と段差有 ☆お客様のニーズに最適な一戸建て、マンション、土地などの不動産情報をご提供致します! | ||
| 情報登録日 | 2025年9月8日 | 情報更新予定日 | 2026年2月22日 |
| 物件番号 | 134653 | 建築確認番号 | |