広島市佐伯区美の里1丁目 新築一戸建て No.2
- 物件価格
- 3,180万円(↓13.6%値下がり)
- 所在地
- 広島市佐伯区美の里1丁目 No.2
- 交通
- 広電宮島線「楽々園」 徒歩15分
- 最寄バス停
- –
- 学校区
- 楽々園小 / 五日市南中
※学校区は住所から自動判定したものであり、保証できる情報ではございません。正確な学校区はお問い合わせ下さい。
- 物件更新日:
- 2026年03月31日
- 写真入れ替え日:
- 2026年01月13日
- 価格改定日:
- 2026年03月30日
セールスポイント
【佐伯区美の里1丁目 新築戸建て住宅 No.2】
利便性と閑静な住環境が調和した街♪
限られた敷地を活用した3階建て☆
3LDK+S♪駐車2台可(車種による)♪
充実した設備が標準仕様♪♪
LDKは2階にありプライバシーを守れます♪
開放感あふれる対面式キッチン♪
収納豊富♪
公園が近く子育て世代にも最適♪
「イオンタウン楽々園」徒歩圏内☆
*****
設計・建設性能評価取得 耐震等級3
≪ご見学できます♪お気軽にお問い合わせください♪≫
~周辺環境~
・ファミリーマート 隅の浜店:徒歩8分(約550m)
・イオンタウン楽々園店:徒歩14分(約1000m)
・楽々園ルンビニ幼稚園:徒歩8分(約550m)
・広島市立楽々園小学校:徒歩9分(約650m)
・広島市立五日市南中学校:徒歩17分(約1200m)
《広島市佐伯区エリアの新築戸建て住宅、不動産情報は「住むりえ」にお任せください♪》
*****
◇住まいのことなら≪住むりえ≫に何でもお気軽にご相談ください♪♪
◇お客様のニーズに最適な一戸建て、マンション、土地などの不動産情報をご提供致します!!
◇注文住宅をご検討の方やリノベーション、売却をお考えの方もお気軽にご相談ください♪♪
「人型アイコン」を地図上にドラッグすることで『Google Street View』に切り替わります。
※地図上の「対象地」は「日本、〒731-5137 広島県広島市佐伯区美の里1丁目13−5」の場所を指しています。実際の場所ではない場合がございます。詳しくはお問い合わせください。
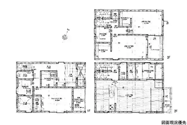
物件概要
| 種目 | 新築一戸建住宅 | ||
|---|---|---|---|
| 間取り | 3SLDK | 間取り内訳 | |
| 土地面積 | 85.14㎡ | 私道面積 | |
| 建物面積 | 125.05㎡ | 建物構造規模 | 木造 3階建 |
| 築年月(竣工月) | 2025年12月 | 駐車場 | 有 |
| 建ぺい率/容積率 | 60%/200% | 都市計画 | 市街化区域 |
| 接道状況 | 東4m 公道 一方道路 | ||
| 地目 | |||
| 土地権利 | 所有権 | 地勢 | 平坦 |
| 用途地域 | 第二種中高層住居専用地域 | ||
| 現況 | 空家 | 取引態様 | 媒介 |
取引条件等
| 引渡し | 即時 |
|---|
その他
| 設備 | 温水洗浄便座、トイレ2ヶ所、追焚機能、浴室乾燥機、システムキッチン、カウンターキッチン、浄水器、ウォークインクローゼット、洗髪洗面化粧台、電気、都市ガス、上水道、下水道、複層ガラス、モニタ付インターホン、駐車場2台分、ストレージルーム(6.5帖)、フリールーム(2帖) | ||
|---|---|---|---|
| 特徴 | 日当り良好、バリアフリー、設計・建設性能評価取得、耐震等級3、フラット35S(金利Aプラン)、地盤保証20年、主要構造部分35年住宅保証システム(有償修繕工事継続による) | ||
| 諸条件・相談 | 南西側道路:認定外道路、引渡後無料点検実施(6ヶ月・2年・5年・10年の計4回) ☆お客様のニーズに最適な一戸建て、マンション、土地などの不動産情報をご提供致します! | ||
| 情報登録日 | 2025年9月8日 | 情報更新予定日 | 2026年4月14日 |
| 物件番号 | 134660 | 建築確認番号 | 第R07SHC115345号 |