広島市安佐南区伴東2丁目 中古一戸建て
- 物件価格
- 650万円
- 所在地
- 広島市安佐南区伴東2丁目
- 交通
- –
- 最寄バス停
- 「瀬戸内ハイツ」 徒歩3分
- 学校区
- 伴小/伴東小 / 伴中
※学校区は住所から自動判定したものであり、保証できる情報ではございません。正確な学校区はお問い合わせ下さい。
- 物件更新日:
- 2026年05月15日
セールスポイント
【安佐南区伴東2丁目 中古戸建て住宅】
公園近く♪緑あふれる閑静な地♪
木造2階建て 昭和50年8月築 3DK☆
心地良い朝日が差し込む東向き住戸♪
全居室収納完備♪
屋根付倉庫有♪
駐車可能♪
最寄りのバス停まで徒歩3分で便利‼
≪現況賃貸中♪お気軽にお問い合わせください♪≫
~周辺環境~
・ローソン広島伴東三丁目店:徒歩12分(約900m)
・ゆめマート沼田店:徒歩20分(約1500m)
・広島市立伴小学校:徒歩32分(約2300m)
・広島市立伴中学校:徒歩34分(約2400m)
・瀬戸内第3公園:徒歩3分(約260m)
《広島市安佐南区エリアの中古戸建て住宅、不動産情報は「住むりえ」にお任せください》
*****
◇住まいのことなら≪住むりえ≫に何でもお気軽にご相談ください♪♪
◇お客様のニーズに最適な一戸建て、マンション、土地などの不動産情報をご提供致します!!
◇注文住宅をご検討の方やリノベーション、売却をお考えの方もお気軽にご相談ください♪♪
担当者より
「人型アイコン」を地図上にドラッグすることで『Google Street View』に切り替わります。
※地図上の「対象地」は「日本、〒731-3164 広島県広島市安佐南区伴東2丁目44−6」の場所を指しています。実際の場所ではない場合がございます。詳しくはお問い合わせください。
物件概要
| 種目 | 中古一戸建住宅 | ||
|---|---|---|---|
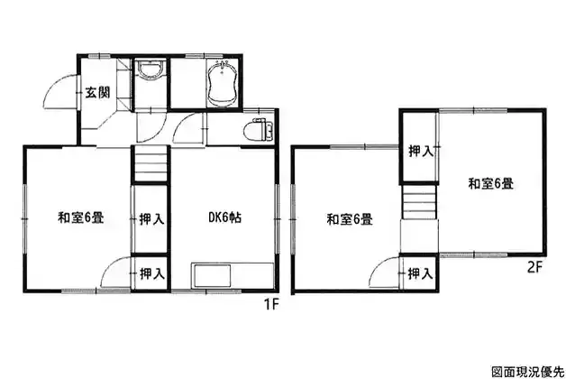
| 間取り | 3DK | 間取り内訳 | |
| 土地面積 | 90.81㎡ | 私道面積 | |
| 建物面積 | 54.87㎡ | 建物構造規模 | 木造 2階建 |
| 築年月(竣工月) | 1975年08月 | 駐車場 | 有 |
| 建ぺい率/容積率 | 50%/100% | 都市計画 | 市街化区域 |
| 接道状況 | 東4m 公道 一方道路 | ||
| 地目 | |||
| 土地権利 | 所有権 | 地勢 | |
| 用途地域 | 第一種低層住居専用地域 | ||
| 現況 | 賃貸中 | 取引態様 | 媒介 |
取引条件等
| 引渡し | 相談 |
|---|
その他
| 設備 | 温水洗浄便座、プロパンガス、上水道、下水道、倉庫 | ||
|---|---|---|---|
| 特徴 | 日当り良好 | ||
| 諸条件・相談 | ☆お客様のニーズに最適な一戸建て、マンション、土地などの不動産情報をご提供致します! | ||
| 情報登録日 | 2025年9月16日 | 情報更新予定日 | 2026年5月31日 |
| 物件番号 | 134926 | 建築確認番号 | |
オーナーチェンジ
賃料58000円/月で賃貸中 表面利回り10.7%
令和8年度固定資産税20500円