Acityタワーズウエスト・ウイング棟 ☆リフォーム完了☆
- 物件価格
- 2,393.8万円(↓10.1%値下がり)
- 所在地
- 広島市安佐南区大塚西3丁目2-3 Acityタワーズウエスト・ウイング棟 ☆リフォーム完了☆310
- 交通
- AL「大塚」 徒歩13分
- 最寄バス停
- 「Aシティー中央」 徒歩2分
- 学校区
- 大塚小 / 大塚中
※学校区は住所から自動判定したものであり、保証できる情報ではございません。正確な学校区はお問い合わせ下さい。
- 物件更新日:
- 2026年02月15日
- 価格改定日:
- 2026年02月14日
セールスポイント
【Acityタワーズウエスト・ウイング棟】
安佐南区大塚西3丁目の中古マンション!
総戸数232戸のビッグコミュニティ♪
☆2025年8月リフォーム完了☆
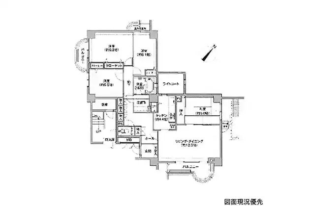
8階建て3階部分。専有面積110.38㎡の広々4LDK♪
暮らしを豊かにする設備も充実!!
色々なタイプの収納があり快適♪
ペット飼育可(規約有)
商業施設が立ち並ぶ利便性に富んだエリア☆
学校や公園も徒歩圏内♪子育て世代にもピッタリ♪
AL「大塚」駅まで徒歩13分‼
≪ご見学できます♪お気軽にお問い合わせください♪≫
~周辺環境~
・ファミリーマートAシティー店:徒歩3分(約180m)
・ナフコ西風新都店:徒歩6分(約400m)
・マックスバリュ 西風新都店:徒歩13分(約750m)
・広島市立大塚小学校:徒歩8分(約500m)
・広島市立大塚中学校:徒歩15分(約900m)
・大塚公園:徒歩4分(約280m)
《安佐南区エリアの中古マンション、不動産情報は「住むりえ」にお任せください♪》
*****
◇住まいのことなら≪住むりえ≫に何でもお気軽にご相談ください♪♪
◇お客様のニーズに最適な一戸建て、マンション、土地などの不動産情報をご提供致します!!
◇注文住宅をご検討の方やリノベーション、売却をお考えの方もお気軽にご相談ください♪♪
「人型アイコン」を地図上にドラッグすることで『Google Street View』に切り替わります。
※地図上の「対象地」は「日本、〒731-3167 広島県広島市安佐南区大塚西3丁目2−3」の場所を指しています。実際の場所ではない場合がございます。詳しくはお問い合わせください。
物件概要
| 種目 | 中古マンション | ||
|---|---|---|---|
| 間取り | 4LDK | 間取り内訳 | |
| 専有面積 | 110.38㎡ | 建物構造 | RC |
| バルコニー面積 | 12.2㎡ | 向き | |
| 階数 | 8階建 | 所在階 | 3階 |
| 築年月(竣工月) | 1998年03月 | 駐車場有無 | 有 |
| 駐車場料金 | 15,000円 | 総戸数 | 232 |
| 管理費 | 13,920円 | 積立金 | 25,630円 |
| 土地権利 | 所有権 | 管理形態/方式 | 管理会社に全部委託/日勤 |
| 用途地域 | 商業地域 | ||
| 現況 | 空家 | 取引態様 | 媒介 |
取引条件等
| 引渡し | 即時 |
|---|
その他
| 設備 | 温水洗浄便座、浴室乾燥機、システムキッチン、食器洗浄乾燥機、トランクルーム、給湯、室内洗濯機置場、エレベーター、洗髪洗面化粧台、オートロック、二面バルコニー、バイク置き場、駐輪場 | ||
|---|---|---|---|
| 特徴 | 日当り良好、2025年8月リフォーム完了:システムキッチン・ユニットバス・洗面化粧台・トイレ・ガス給湯器交換、洗濯パン・カーテンレール取替、クッションフロア張替、全室・天井・壁クロス張替、畳新調、襖・障子張替、フローリング張替、配管取替 | ||
| 諸条件・相談 | ペット可、(規約有)、管理準備金:22,600円・修繕積立金基金:1,129,960円 ☆お客様のニーズに最適な一戸建て、マンション、土地などの不動産情報をご提供致します! | ||
| 情報登録日 | 2025年9月19日 | 情報更新予定日 | 2026年5月3日 |
| 物件番号 | 135017 | 建築確認番号 | |