廿日市市阿品4丁目 新築一戸建て No.5
- 物件価格
- 4,780万円
- 所在地
- 廿日市市阿品4丁目 No.5
- 交通
- JR山陽本線「阿品」 徒歩12分
- 最寄バス停
- –
- 学校区
- 阿品台西小 / 阿品台中
※学校区は住所から自動判定したものであり、保証できる情報ではございません。正確な学校区はお問い合わせ下さい。
- 物件更新日:
- 2026年04月06日
- 写真入れ替え日:
- 2025年10月03日
セールスポイント
【廿日市市阿品4丁目 新築戸建て住宅 No.5】
自然豊かな閑静な地♪
令和7年8月完成!敷地約49坪!
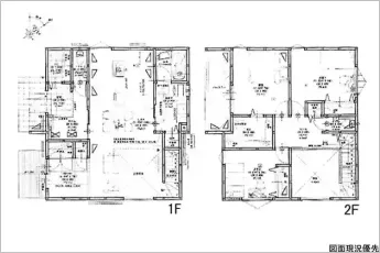
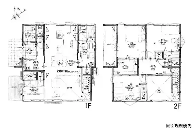
2階建ての3LDK+畳コーナー☆
LDKは約19帖!開放的な空間♪
上部吹抜の明るいリビング♪
収納充実♪(SIC・WIC等)
幼稚園・公園すぐそば。子育て環境良好☆
JR「阿品」駅まで徒歩12分‼
◇◇同区画有◇◇
≪ご見学できます♪お気軽にお問い合わせください♪≫
~周辺環境~
・フジグランナタリー:徒歩13分(約1100m)
・ドラッグコスモス 阿品店:徒歩14分(約1100m)
・ふじ幼稚園:徒歩2分(約120m)
・廿日市市立阿品台西小学校:徒歩11分(約800m)
・廿日市市立阿品台中学校:徒歩24分(約1700m)
《廿日市エリアの新築戸建て住宅、不動産情報は「住むりえ」にお任せください♪》
*****
◇住まいのことなら≪住むりえ≫に何でもお気軽にご相談ください♪♪
◇お客様のニーズに最適な一戸建て、マンション、土地などの不動産情報をご提供致します!!
◇注文住宅をご検討の方やリノベーション、売却をお考えの方もお気軽にご相談ください♪♪
「人型アイコン」を地図上にドラッグすることで『Google Street View』に切り替わります。
※地図上の「対象地」は「日本、〒738-0054 広島県廿日市市阿品4丁目25−18」の場所を指しています。実際の場所ではない場合がございます。詳しくはお問い合わせください。
物件概要
| 種目 | 新築一戸建住宅 | ||
|---|---|---|---|
| 間取り | 3SLDK | 間取り内訳 | |
| 土地面積 | 165.26㎡ | 私道面積 | |
| 建物面積 | 111.79㎡ | 建物構造規模 | 木造 2階建 |
| 築年月(竣工月) | 2025年08月 | 駐車場 | 有 |
| 建ぺい率/容積率 | 40%/80% | 都市計画 | 市街化区域 |
| 接道状況 | 北西6.2m 公道 南西4.1m 私道 | ||
| 地目 | |||
| 土地権利 | 所有権 | 地勢 | |
| 用途地域 | 第一種低層住居専用地域 | ||
| 現況 | 空家 | 取引態様 | 媒介 |
取引条件等
| 引渡し | 即時 |
|---|
その他
| 設備 | 温水洗浄便座、トイレ2ヶ所、追焚機能、浴室乾燥機、システムキッチン、カウンターキッチン、IHクッキングヒーター、浄水器、食器洗浄乾燥機、ウォークインクローゼット、洗髪洗面化粧台、照明器具、電気、上水道、下水道、モニタ付インターホン、駐車場3台分、アイランドキッチン、SIC、畳コーナー(3.1帖)、リビング階段、宅配ボックス、シーリングファン・ロールカーテン付き、、外構タイル内に照明埋込み | ||
|---|---|---|---|
| 特徴 | 日当り良好、吹抜、オール電化、眺望良好、エコキュート、省令準耐火仕様 | ||
| 諸条件・相談 | 道路持分(1/5):地番4733-8 ☆お客様のニーズに最適な一戸建て、マンション、土地などの不動産情報をご提供致します! | ||
| 情報登録日 | 2025年9月25日 | 情報更新予定日 | 2026年5月2日 |
| 物件番号 | 135163 | 建築確認番号 | 第R06認広建セ02457号 |