廿日市市対厳山1丁目 中古一戸建て
- 物件価格
- 2,600万円
- 所在地
- 廿日市市対厳山1丁目
- 交通
- JR山陽本線「宮島口」 徒歩15分
- 最寄バス停
- –
- 学校区
- 大野東小 / 大野東中
※学校区は住所から自動判定したものであり、保証できる情報ではございません。正確な学校区はお問い合わせ下さい。
- 物件更新日:
- 2025年10月04日
- 写真入れ替え日:
- 2025年10月04日
セールスポイント
【廿日市市対厳山1丁目 中古戸建て住宅】
対厳山の落ち着いた地で安らぎの暮らし♪
100坪超の広い敷地が自慢の家‼
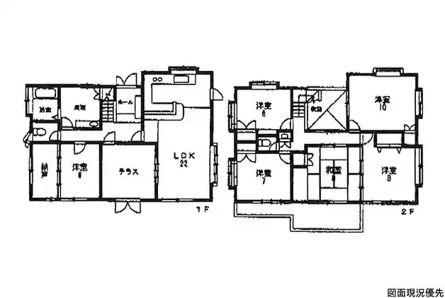
木造2階建て 昭和57年築 部屋数豊富な6LDK☆
約22帖の広々LDK♪開放的な空間♪
多目的に使えるテラス付♪
公園が近くのびのびと子育てができます♪
JR・広電の2路線利用可能☆
リノベーションで思い通りにアレンジしてみては…
≪資料請求できます♪お問い合わせください♪≫
~周辺環境~
・ファミリーマート 広島宮島口店:徒歩13分(約900m)
・ピュアークック青葉台店:徒歩18分(約1100m)
・もみじ郵便局:徒歩14分(約900m)
・かえで幼稚園:徒歩8分(約450m)
・廿日市市立大野東小学校:徒歩21分(約1500m)
・廿日市市立大野東中学校:徒歩20分(約1300m)
・対厳山2号公園:徒歩5分(約350m)
《廿日市エリアの中古戸建て住宅、不動産情報は「住むりえ」にお任せください》
*****
◇住まいのことなら≪住むりえ≫に何でもお気軽にご相談ください♪♪
◇お客様のニーズに最適な一戸建て、マンション、土地などの不動産情報をご提供致します!!
◇注文住宅をご検討の方やリノベーション、売却をお考えの方もお気軽にご相談ください♪♪
「人型アイコン」を地図上にドラッグすることで『Google Street View』に切り替わります。
※地図上の「対象地」は「日本、〒739-0402 広島県廿日市市対厳山1丁目5−12」の場所を指しています。実際の場所ではない場合がございます。詳しくはお問い合わせください。
物件概要
| 種目 | 中古一戸建住宅 | ||
|---|---|---|---|
| 間取り | 6LDK | 間取り内訳 | |
| 土地面積 | 344.24㎡ | 私道面積 | |
| 建物面積 | 171.58㎡ | 建物構造規模 | 木造 2階建 |
| 築年月(竣工月) | 1982年10月 | 駐車場 | 有 |
| 建ぺい率/容積率 | 50%/80% | 都市計画 | 市街化区域 |
| 接道状況 | 北西6m 公道 接面15m 一方道路 | ||
| 地目 | |||
| 土地権利 | 所有権 | 地勢 | |
| 用途地域 | 第一種低層住居専用地域 | ||
| 現況 | 取引態様 | 媒介 | |
取引条件等
| 引渡し | 相談 |
|---|
その他
| 設備 | トイレ2ヶ所、プロパンガス、上水道、下水道、納戸 | ||
|---|---|---|---|
| 特徴 | 売主の契約不適合責任免責、確定測量図および境界標の設置はしないものとする | ||
| 諸条件・相談 | 現状有姿での引渡し ☆お客様のニーズに最適な一戸建て、マンション、土地などの不動産情報をご提供致します! | ||
| 情報登録日 | 2025年9月25日 | 情報更新予定日 | 2025年12月14日 |
| 物件番号 | 135168 | 建築確認番号 | |