広島市佐伯区観音台1丁目 中古一戸建て
- 物件価格
- 2,490万円(↓7.4%値下がり)
- 所在地
- 広島市佐伯区観音台1丁目
- 交通
- –
- 最寄バス停
- 「観音台」 徒歩4分
- 学校区
- 五日市観音西小 / 五日市観音中
※学校区は住所から自動判定したものであり、保証できる情報ではございません。正確な学校区はお問い合わせ下さい。
- 物件更新日:
- 2026年02月24日
- 写真入れ替え日:
- 2025年10月13日
- 価格改定日:
- 2026年02月23日
セールスポイント
【佐伯区観音台1丁目 中古戸建て住宅】
自然と安らぎに満ちた緑豊かな住環境♪
平成28年8月築の築浅物件♪♪
敷地約51坪 木造2階建て 4LDK☆
エコキュート採用!太陽光発電システム搭載!
全居室6帖以上♪全居室収納付♪
対面式キッチンで居心地の良い住空間☆
北東角地につき開放的♪
駐車場:3台可‼
公園や小・中学校が近く子育てにも最適♪
*****
令和5年洗面台・温水洗浄便座・リビングエアコン取替
≪資料請求できます♪お問い合わせください♪≫
~周辺環境~
・ファミリーマート 五日市城山南店:徒歩20分(約1600m)
・クスリ岩崎チェーン 五日市城山店:徒歩22分(約1700m)
・フレスタ波出石店:徒歩24分(約1800m)
・広島市立五日市観音西小学校:徒歩7分(約500m)
・広島市立五日市観音中学校:徒歩8分(約600m)
・ちびっこひろば:徒歩2分(約120m)
《広島市佐伯区エリアの中古戸建て住宅、不動産情報は「住むりえ」にお任せください》
*****
◇住まいのことなら≪住むりえ≫に何でもお気軽にご相談ください♪♪
◇お客様のニーズに最適な一戸建て、マンション、土地などの不動産情報をご提供致します!!
◇注文住宅をご検討の方やリノベーション、売却をお考えの方もお気軽にご相談ください♪♪
「人型アイコン」を地図上にドラッグすることで『Google Street View』に切り替わります。
※地図上の「対象地」は「日本、〒731-5157 広島県広島市佐伯区観音台1丁目40−18」の場所を指しています。実際の場所ではない場合がございます。詳しくはお問い合わせください。
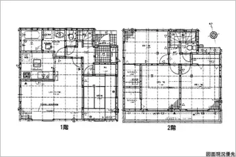
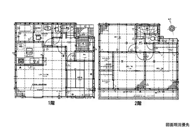
物件概要
| 種目 | 中古一戸建住宅 | ||
|---|---|---|---|
| 間取り | 4LDK | 間取り内訳 | |
| 土地面積 | 169.23㎡ | 私道面積 | |
| 建物面積 | 99.77㎡ | 建物構造規模 | 木造 2階建 |
| 築年月(竣工月) | 2016年08月 | 駐車場 | 有 |
| 建ぺい率/容積率 | 50%/100% | 都市計画 | 市街化区域 |
| 接道状況 | 北4.8m 公道 東4.8m 公道 角地 | ||
| 地目 | |||
| 土地権利 | 所有権 | 地勢 | |
| 用途地域 | 第一種低層住居専用地域 | ||
| 現況 | 所有者居住中 | 取引態様 | 媒介 |
取引条件等
| 引渡し | 相談 |
|---|
その他
| 設備 | 温水洗浄便座、トイレ2ヶ所、システムキッチン、カウンターキッチン、ウォークインクローゼット、床下収納、洗髪洗面化粧台、都市ガス、上水道、下水道、複層ガラス、エアコン、モニタ付インターホン、駐車場3台分、全居室収納、ベタ基礎、外壁サイディング | ||
|---|---|---|---|
| 特徴 | 日当り良好、太陽光発電システム2kwh、エコキュート、令和5年洗面台・温水洗浄便座・リビングエアコン取替、耐震等級3、新築時住宅性能評価 | ||
| 諸条件・相談 | ☆お客様のニーズに最適な一戸建て、マンション、土地などの不動産情報をご提供致します! | ||
| 情報登録日 | 2025年9月29日 | 情報更新予定日 | 2026年3月10日 |
| 物件番号 | 135314 | 建築確認番号 | |