広島市南区宇品御幸4丁目 新築一戸建て No.1
- 物件価格
- 5,480万円
- 所在地
- 広島市南区宇品御幸4丁目 No.1
- 交通
- –
- 最寄バス停
- 「御幸5丁目」 徒歩3分
- 学校区
- 宇品小 / 宇品中
※学校区は住所から自動判定したものであり、保証できる情報ではございません。正確な学校区はお問い合わせ下さい。
- 物件更新日:
- 2026年03月17日
セールスポイント
【南区宇品御幸4丁目 新築戸建て住宅 No.1】
生活施設が充実の便利な宇品エリア♪♪
2階建て4LDKの新築戸建て住宅登場☆
角地につき開放的♪日当り・通風良好♪
LDKは約17.8帖で家族の安らぎ空間が実現♪
対面式キッチン採用♪
各居室収納完備♪
商業施設、学校、病院近くの好立地♪
子育て世代にもピッタリ☆
≪ご見学できます♪お問い合わせください♪≫
~周辺環境~
・セブン-イレブン 広島宇品西4丁目店:徒歩4分(約280m)
・ダイレックス 宇品店:徒歩4分(約280m)
・ゆめタウンみゆき:徒歩8分(約550m)
・うじな保育園:徒歩4分(約250m)
・広島市立宇品小学校:徒歩1分(約100m)
・広島市立宇品中学校:徒歩21分(約1500m)
《広島市南区エリアの新築戸建て住宅、不動産情報は「住むりえ」にお任せください》
*****
◇住まいのことなら≪住むりえ≫に何でもお気軽にご相談ください♪♪
◇お客様のニーズに最適な一戸建て、マンション、土地などの不動産情報をご提供致します!!
◇注文住宅をご検討の方やリノベーション、売却をお考えの方もお気軽にご相談ください♪♪
「人型アイコン」を地図上にドラッグすることで『Google Street View』に切り替わります。
※地図上の「対象地」は「日本、〒734-0015 広島県広島市南区宇品御幸4丁目16−1」の場所を指しています。実際の場所ではない場合がございます。詳しくはお問い合わせください。
物件概要
| 種目 | 新築一戸建住宅 | ||
|---|---|---|---|
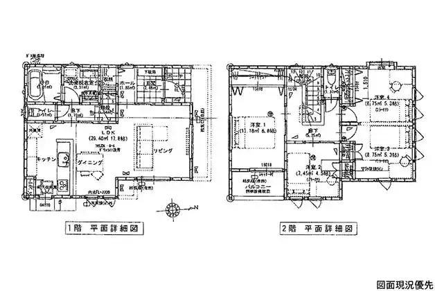
| 間取り | 4LDK | 間取り内訳 | |
| 土地面積 | 94.47㎡ | 私道面積 | |
| 建物面積 | 98.34㎡ | 建物構造規模 | 木造 2階建 |
| 築年月(竣工月) | 2026年01月 | 駐車場 | 有 |
| 建ぺい率/容積率 | 60%/200% | 都市計画 | 市街化区域 |
| 接道状況 | 北4.4m 公道 東4m 公道 角地 | ||
| 地目 | |||
| 土地権利 | 所有権 | 地勢 | 平坦 |
| 用途地域 | 第一種住居地域 | ||
| 現況 | 空家 | 取引態様 | 媒介 |
取引条件等
| 引渡し | 相談 |
|---|
その他
| 設備 | 温水洗浄便座、トイレ2ヶ所、追焚機能、浴室乾燥機、システムキッチン、カウンターキッチン、浄水器、食器洗浄乾燥機、床下収納、洗髪洗面化粧台、モニタ付インターホン、駐車場2台分 | ||
|---|---|---|---|
| 特徴 | 日当り良好 | ||
| 諸条件・相談 | 表記土地面積はセットバック後面積 ☆お客様のニーズに最適な一戸建て、マンション、土地などの不動産情報をご提供致します! | ||
| 情報登録日 | 2025年9月29日 | 情報更新予定日 | 2026年5月7日 |
| 物件番号 | 135319 | 建築確認番号 | 748 |