広島市佐伯区海老園3丁目 新築一戸建て No.1
- 物件価格
- 5,080万円(↓1.9%値下がり)
- 所在地
- 広島市佐伯区海老園3丁目 No.1
- 交通
- 広電宮島線「佐伯区役所前」 徒歩10分
- 最寄バス停
- 「海老山公園前」 徒歩7分
- 学校区
- 五日市南小 / 五日市南中
※学校区は住所から自動判定したものであり、保証できる情報ではございません。正確な学校区はお問い合わせ下さい。
- 物件更新日:
- 2026年04月18日
- 写真入れ替え日:
- 2026年03月06日
- 価格改定日:
- 2026年04月08日
セールスポイント
【佐伯区海老園3丁目 新築戸建て住宅 No.1】
利便性と住環境を兼ね備えた立地♪
敷地約31坪 2階建て2LDK+2Sの新築戸建て登場☆
充実した設備が標準仕様!!
◇ZEH水準省エネ住宅♪
◇約18.75帖の広々LDK♪
◇開放的な対面式キッチン♪
◇エコカラット採用♪(リビングTV壁面)
◇衣類乾燥機「乾太くん」装備♪
◇収納豊富♪
◇駐車場:2台可(車種による)
◇小・中学校、保育園も近くお子様も安心♪
◇JR・広電・バス利用可能☆
≪ご見学できます♪お気軽にお問い合わせください♪≫
~周辺環境~
・ローソン 広島海老園二丁目店:徒歩5分(約300m)
・フレスタ海老園店:徒歩6分(約500m)
・ウォンツ海老園店:徒歩7分(約550m)
・五日市南保育園:徒歩11分(約800m)
・広島市立五日市南小学校:徒歩9分(約650m)
・広島市立五日市南中学校:徒歩6分(約450m)
《広島市佐伯区エリアの新築戸建て住宅、不動産情報は「住むりえ」にお任せください》
*****
◇住まいのことなら≪住むりえ≫に何でもお気軽にご相談ください♪♪
◇お客様のニーズに最適な一戸建て、マンション、土地などの不動産情報をご提供致します!!
◇注文住宅をご検討の方やリノベーション、売却をお考えの方もお気軽にご相談ください♪♪
「人型アイコン」を地図上にドラッグすることで『Google Street View』に切り替わります。
※地図上の「対象地」は「日本、〒731-5135 広島県広島市佐伯区海老園3丁目4−4」の場所を指しています。実際の場所ではない場合がございます。詳しくはお問い合わせください。
物件概要
| 種目 | 新築一戸建住宅 | ||
|---|---|---|---|
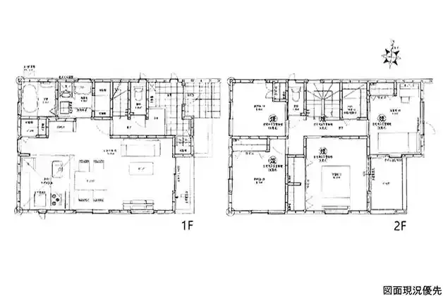
| 間取り | 2SLDK | 間取り内訳 | |
| 土地面積 | 103.6㎡ | 私道面積 | |
| 建物面積 | 105.16㎡ | 建物構造規模 | 木造 2階建 |
| 築年月(竣工月) | 2026年03月 | 駐車場 | 有 |
| 建ぺい率/容積率 | 60%/200% | 都市計画 | 市街化区域 |
| 接道状況 | 東4.3m 公道 一方道路 | ||
| 地目 | 宅地 | ||
| 土地権利 | 所有権 | 地勢 | 平坦 |
| 用途地域 | 第二種中高層住居専用地域 | ||
| 現況 | 空家 | 取引態様 | 媒介 |
取引条件等
| 引渡し | 相談 |
|---|
その他
| 設備 | 温水洗浄便座、トイレ2ヶ所、追焚機能、浴室乾燥機、システムキッチン、カウンターキッチン、浄水器、食器洗浄乾燥機、ウォークインクローゼット、床下収納、洗髪洗面化粧台、電気、都市ガス、上水道、下水道、複層ガラス、モニタ付インターホン、駐車場2台分、納戸×2、SIC、FCL、パントリー、カップボード、ミセスカウンター、乾太くん、ウルトラファインバブル給湯器、エコカラット(リビングTV壁面)、宅配Box、外構付 | ||
|---|---|---|---|
| 特徴 | 日当り良好、24時間換気システム、ZEH水準省エネ住宅 | ||
| 諸条件・相談 | ☆お客様のニーズに最適な一戸建て、マンション、土地などの不動産情報をご提供致します! | ||
| 情報登録日 | 2025年10月9日 | 情報更新予定日 | 2026年5月7日 |
| 物件番号 | 135653 | 建築確認番号 | R07認広建セ00817号 |