廿日市市阿品台1丁目 新築一戸建て No.2
- 物件価格
- 3,890万円(↓4.9%値下がり)
- 所在地
- 廿日市市阿品台1丁目 No.2
- 交通
- 広電宮島線「阿品東」 徒歩14分
- 最寄バス停
- 「阿品台一丁目」 徒歩4分
- 学校区
- 阿品台東小 /-
※学校区は住所から自動判定したものであり、保証できる情報ではございません。正確な学校区はお問い合わせ下さい。
- 物件更新日:
- 2026年02月03日
- 写真入れ替え日:
- 2026年02月03日
- 価格改定日:
- 2026年01月18日
セールスポイント
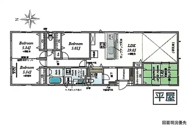
【廿日市市阿品台1丁目 新築平屋住宅 No.2】
自然と安らぎに満ちた緑豊かな住環境♪
生活動線や家事動線が効率的な平屋建て☆
敷地広々約60坪 3LDK 駐車3台可♪
充実した設備が標準仕様♪♪
家族の会話が弾む対面式キッチン♪
約10.68帖洋室は間仕切りして2部屋に分割可能♪
収納充実プラン♪
公園や教育施設は徒歩圏内♪子育て環境良好♪
フジグランナタリー店まで車で約7分!買物便利☆
◇◇同区画:No.1(3.790万円)有◇◇
≪ご見学できます♪お気軽にお問い合わせください♪≫
~周辺環境~
・ピュアークック アジナモール店:徒歩13分(約900m)
・ナフコ阿品店:徒歩12分(約800m)
・つくし幼稚園:徒歩7分(約450m)
・廿日市市立阿品東小学校:徒歩12分(約800m)
・廿日市市立阿品台中学校:徒歩12分(約750m)
・阿品台第一公園:徒歩7分(約500m)
《廿日市エリアの新築戸建て住宅、不動産情報は「住むりえ」にお任せください》
*****
◇住まいのことなら≪住むりえ≫に何でもお気軽にご相談ください♪♪
◇お客様のニーズに最適な一戸建て、マンション、土地などの不動産情報をご提供致します!!
◇注文住宅をご検討の方やリノベーション、売却をお考えの方もお気軽にご相談ください♪♪
「人型アイコン」を地図上にドラッグすることで『Google Street View』に切り替わります。
※地図上の「対象地」は「日本、〒738-0053 広島県廿日市市阿品台1丁目11−44」の場所を指しています。実際の場所ではない場合がございます。詳しくはお問い合わせください。
物件概要
| 種目 | 新築一戸建住宅 | ||
|---|---|---|---|
| 間取り | 3LDK | 間取り内訳 | |
| 土地面積 | 201.51㎡ | 私道面積 | |
| 建物面積 | 93.57㎡ | 建物構造規模 | 木造 1階建 |
| 築年月(竣工月) | 2026年01月 | 駐車場 | 有 |
| 建ぺい率/容積率 | 50%/100% | 都市計画 | 市街化区域 |
| 接道状況 | 南8.3m 公道 一方道路 | ||
| 地目 | |||
| 土地権利 | 所有権 | 地勢 | |
| 用途地域 | 第一種低層住居専用地域 | ||
| 現況 | 空家 | 取引態様 | 媒介 |
取引条件等
| 引渡し | 相談 |
|---|
その他
| 設備 | 温水洗浄便座、トイレ2ヶ所、浴室乾燥機、システムキッチン、カウンターキッチン、食器洗浄乾燥機、床下収納、洗髪洗面化粧台、照明器具、電気、都市ガス、上水道、下水道、複層ガラス、モニタ付インターホン、駐車場3台分、収納充実 | ||
|---|---|---|---|
| 特徴 | 日当り良好、制振ダンパー、耐震等級3の住宅性能評価、長期優良住宅、エネルギー消費性能星3つ | ||
| 諸条件・相談 | 無料点検実施(引渡後3ヶ月・2年・5年・10年)、閑静な住宅街 ☆お客様のニーズに最適な一戸建て、マンション、土地などの不動産情報をご提供致します! | ||
| 情報登録日 | 2025年10月14日 | 情報更新予定日 | 2026年2月17日 |
| 物件番号 | 135838 | 建築確認番号 | 第R07SHC119197号 |