広島市西区己斐東2丁目 新築一戸建て
- 物件価格
- 4,290万円
- 所在地
- 広島市西区己斐東2丁目
- 交通
- JR山陽本線「西広島」 徒歩15分
- 最寄バス停
- 「集会所前」 徒歩4分
- 学校区
- 己斐東小 / 己斐中
※学校区は住所から自動判定したものであり、保証できる情報ではございません。正確な学校区はお問い合わせ下さい。
- 物件更新日:
- 2025年11月17日
セールスポイント
【西区己斐東2丁目 新築戸建て住宅】
安らぎを実感できる街並。落ち着いた住環境♪
◇令和7年5月完成♪♪
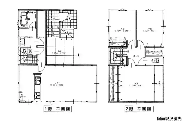
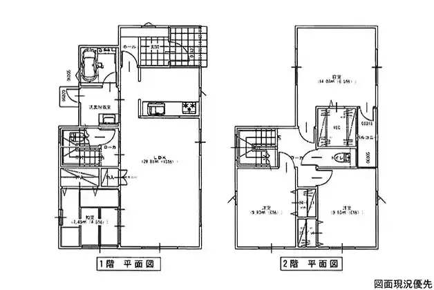
◇敷地約62坪 2階建ての4LDK☆
◇LDKはゆとりの約18帖♪
◇対面式キッチン採用♪
◇収納力豊富なWIC設置♪
◇駐車場:4台可(並列)
◇公園徒歩2分♪小学校徒歩7分♪子育て環境良好♪
◇最寄りのバス停まで徒歩4分‼
≪ご見学できます♪お気軽にお問い合わせください♪≫
~周辺環境~
・己斐東第五公園:徒歩2分(約180m)
・広島市立己斐東小学校:徒歩7分(約450m)
・ファミリーマート 己斐中一丁目店:徒歩14分(約1000m)
・ウォンツ 己斐駅前店:徒歩15分(約1100m)
・ゆめマート己斐:徒歩16分(約1100m)
《広島市西区エリアの新築戸建て住宅、不動産情報は「住むりえ」にお任せください♪》
*****
◇住まいのことなら≪住むりえ≫に何でもお気軽にご相談ください♪♪
◇お客様のニーズに最適な一戸建て、マンション、土地などの不動産情報をご提供致します!!
◇注文住宅をご検討の方やリノベーション、売却をお考えの方もお気軽にご相談ください♪♪
「人型アイコン」を地図上にドラッグすることで『Google Street View』に切り替わります。
※地図上の「対象地」は「日本、〒733-0811 広島県広島市西区己斐東2丁目13−2」の場所を指しています。実際の場所ではない場合がございます。詳しくはお問い合わせください。
物件概要
| 種目 | 新築一戸建住宅 | ||
|---|---|---|---|
| 間取り | 4LDK | 間取り内訳 | |
| 土地面積 | 207.14㎡ | 私道面積 | |
| 建物面積 | 101.85㎡ | 建物構造規模 | 木造 2階建 |
| 築年月(竣工月) | 2025年05月 | 駐車場 | 有 |
| 建ぺい率/容積率 | 50%/100% | 都市計画 | 市街化区域 |
| 接道状況 | 東4m 公道 一方道路 | ||
| 地目 | |||
| 土地権利 | 所有権 | 地勢 | |
| 用途地域 | 第一種低層住居専用地域 | ||
| 現況 | 空家 | 取引態様 | 媒介 |
取引条件等
| 引渡し | 即時 |
|---|
その他
| 設備 | 温水洗浄便座、トイレ2ヶ所、浴室乾燥機、システムキッチン、カウンターキッチン、食器洗浄乾燥機、ウォークインクローゼット、洗髪洗面化粧台、電気、都市ガス、上水道、下水道、複層ガラス、モニタ付インターホン、駐車場4台分、リビング階段 | ||
|---|---|---|---|
| 特徴 | 日当り良好 | ||
| 諸条件・相談 | ☆お客様のニーズに最適な一戸建て、マンション、土地などの不動産情報をご提供致します! | ||
| 情報登録日 | 2025年10月17日 | 情報更新予定日 | 2026年4月11日 |
| 物件番号 | 135925 | 建築確認番号 | 第R06認広建セ02478号 |