広島市安佐南区古市4丁目 新築一戸建て
- 物件価格
- 4,450万円
- 所在地
- 広島市安佐南区古市4丁目
- 交通
- JR可部線「古市橋」 徒歩4分
- 最寄バス停
- –
- 学校区
- 古市小/祇園小 / 安佐南中/祇園中
※学校区は住所から自動判定したものであり、保証できる情報ではございません。正確な学校区はお問い合わせ下さい。
- 物件更新日:
- 2025年10月25日
セールスポイント
【安佐南区古市4丁目 新築戸建て住宅】
JR「古市橋」駅徒歩4分。利便性溢れる立地♪
限られた敷地を活用した3階建て住宅☆
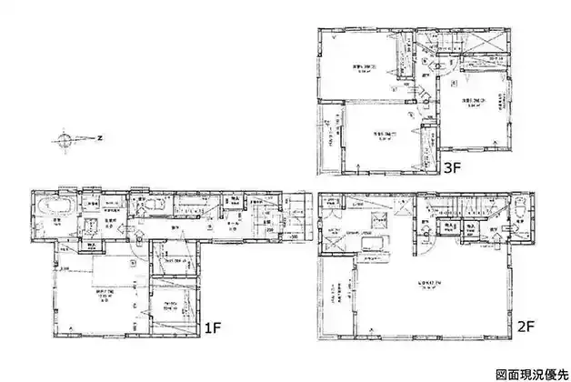
令和7年5月完成♪3LDK+S♪
オール電化で安心・快適な暮らし♪
LDKは2階にありプライバシーを守れます♪
家族の会話が弾む対面式キッチン♪
収納豊富♪(WIC・FCL等)
充実の周辺環境♪♪
子育て世代にもピッタリ☆
≪ご見学できます♪お問い合わせください♪≫
~周辺環境~
・フジ古市店:徒歩5分(約400m)
・セブン-イレブン 広島中須店:徒歩5分(約350m)
・はなわ ゆめマート大町店:徒歩9分(約650m)
・広島市立古市幼稚園:徒歩11分(約750m)
・広島市立古市小学校:徒歩13分(約900m)
・広島市立安佐南中学校:徒歩24分(約1500m)
・広島市安佐南区役所:徒歩10分(約700m)
《広島市安佐南区エリアの新築戸建て住宅、不動産情報は「住むりえ」にお任せください》
*****
◇住まいのことなら≪住むりえ≫に何でもお気軽にご相談ください♪♪
◇お客様のニーズに最適な一戸建て、マンション、土地などの不動産情報をご提供致します!!
◇注文住宅をご検討の方やリノベーション、売却をお考えの方もお気軽にご相談ください♪♪
「人型アイコン」を地図上にドラッグすることで『Google Street View』に切り替わります。
※地図上の「対象地」は「日本、〒731-0123 広島県広島市安佐南区古市4丁目8−6」の場所を指しています。実際の場所ではない場合がございます。詳しくはお問い合わせください。
物件概要
| 種目 | 新築一戸建住宅 | ||
|---|---|---|---|
| 間取り | 3SLDK | 間取り内訳 | |
| 土地面積 | 89.21㎡ | 私道面積 | |
| 建物面積 | 109.09㎡ | 建物構造規模 | 木造 3階建 |
| 築年月(竣工月) | 2025年05月 | 駐車場 | 有 |
| 建ぺい率/容積率 | 60%/160% | 都市計画 | 市街化区域 |
| 接道状況 | 北4m 私道 接面7.1m 位置指定有 一方道路 | ||
| 地目 | |||
| 土地権利 | 所有権 | 地勢 | |
| 用途地域 | 第一種住居地域 | ||
| 現況 | 空家 | 取引態様 | 媒介 |
取引条件等
| 引渡し | 即時 |
|---|
その他
| 設備 | トイレ2ヶ所、システムキッチン、カウンターキッチン、IHクッキングヒーター、ウォークインクローゼット、床下収納、洗髪洗面化粧台、上水道、下水道、複層ガラス、モニタ付インターホン、納戸(7.7帖)、FCL、パントリー | ||
|---|---|---|---|
| 特徴 | オール電化 | ||
| 諸条件・相談 | ☆お客様のニーズに最適な一戸建て、マンション、土地などの不動産情報をご提供致します! | ||
| 情報登録日 | 2025年10月24日 | 情報更新予定日 | 2026年5月2日 |
| 物件番号 | 136132 | 建築確認番号 | 第R06認広建セ01949号 |