広島市西区己斐大迫2丁目 新築一戸建て
- 物件価格
- 3,490万円(↓5.4%値下がり)
- 所在地
- 広島市西区己斐大迫2丁目
- 交通
- –
- 最寄バス停
- 「国迫団地」 徒歩2分
- 学校区
- 己斐上小 / 己斐上中
※学校区は住所から自動判定したものであり、保証できる情報ではございません。正確な学校区はお問い合わせ下さい。
- 物件更新日:
- 2026年04月13日
- 写真入れ替え日:
- 2026年02月05日
- 価格改定日:
- 2026年03月29日
セールスポイント
【西区己斐大迫2丁目 新築戸建て住宅】
自然と安らぎに満ちた緑豊かな住環境♪
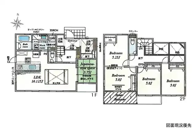
敷地約56坪!2階建て4LDKの新築戸建て登場☆
オール電化住宅♪太陽光パネル搭載♪
充実した設備が標準仕様!!
お洒落で開放的な折上天井が魅力のLDK♪
対面式キッチン採用♪
2階洋室は間仕切りして2部屋に分割可能♪
駐車場:3台可♪
買物施設や教育施設は徒歩圏内♪
ファミリーに住み良い環境☆
最寄りのバス停まで徒歩3分‼
≪ご見学できます♪お気軽にお問い合わせください♪≫
~周辺環境~
◇国迫公園:徒歩2分(約140m)
◇ピュアークック 己斐上店:徒歩3分(約240m)
◇ローソン 広島己斐上店:徒9分(約600m)
◇広島己斐上四郵便局:徒歩7分(約500m)
◇のぞみ幼稚園:徒歩12分(約650m)
◇広島市立己斐上小学校:徒歩7分(約400m)
◇広島市立己斐上中学校:徒歩13分(約750m)
《広島市西区エリアの新築戸建て住宅、不動産情報は「住むりえ」にお任せください》
*****
◇住まいのことなら≪住むりえ≫に何でもお気軽にご相談ください♪♪
◇お客様のニーズに最適な一戸建て、マンション、土地などの不動産情報をご提供致します!!
◇注文住宅をご検討の方やリノベーション、売却をお考えの方もお気軽にご相談ください♪♪
「人型アイコン」を地図上にドラッグすることで『Google Street View』に切り替わります。
※地図上の「対象地」は「日本、〒733-0816 広島県広島市西区己斐大迫2丁目37−16」の場所を指しています。実際の場所ではない場合がございます。詳しくはお問い合わせください。
物件概要
| 種目 | 新築一戸建住宅 | ||
|---|---|---|---|
| 間取り | 4LDK | 間取り内訳 | |
| 土地面積 | 185.65㎡ | 私道面積 | |
| 建物面積 | 109.35㎡ | 建物構造規模 | 木造 2階建 |
| 築年月(竣工月) | 2026年02月 | 駐車場 | 有 |
| 建ぺい率/容積率 | 50%/100% | 都市計画 | 市街化区域 |
| 接道状況 | 北4m 公道 一方道路 | ||
| 地目 | |||
| 土地権利 | 所有権 | 地勢 | |
| 用途地域 | 第一種低層住居専用地域 | ||
| 現況 | 空家 | 取引態様 | 媒介 |
取引条件等
| 引渡し | 即時 |
|---|
その他
| 設備 | 温水洗浄便座、トイレ2ヶ所、追焚機能、浴室乾燥機、システムキッチン、カウンターキッチン、IHクッキングヒーター、浄水器、食器洗浄乾燥機、床下収納、洗髪洗面化粧台、照明器具、電気、上水道、下水道、複層ガラス、モニタ付インターホン、駐車場3台分、折上天井、土間収納、インナーバルコニー | ||
|---|---|---|---|
| 特徴 | 吹抜、オール電化、制振ダンパー、耐震等級3の住宅性能評価、長期優良住宅、エネルギー消費性能星3つ、太陽光パネル(月額利用料要) | ||
| 諸条件・相談 | 無料点検実施(引渡後3ヶ月・2年・5年・10年) ☆お客様のニーズに最適な一戸建て、マンション、土地などの不動産情報をご提供致します! | ||
| 情報登録日 | 2025年10月28日 | 情報更新予定日 | 2026年4月27日 |
| 物件番号 | 136244 | 建築確認番号 | 第R07SHC120354号 |