広島市佐伯区五月が丘4丁目 新築一戸建て No.2
- 物件価格
- 3,395万円(↓12.9%値下がり)
- 所在地
- 広島市佐伯区五月が丘4丁目 No.2
- 交通
- –
- 最寄バス停
- 「五月が丘団地四丁目上」 徒歩1分
- 学校区
- 五月が丘小 / 五月が丘中
※学校区は住所から自動判定したものであり、保証できる情報ではございません。正確な学校区はお問い合わせ下さい。
- 物件更新日:
- 2026年04月01日
- 価格改定日:
- 2026年03月31日
セールスポイント
【佐伯区五月が丘4丁目 新築戸建て住宅 No.2】
自然と安らぎに満ちた閑静な地♪
令和7年9月完成!敷地約48坪!2階建ての4LDK☆
省エネ、安全性を実感できるオール電化♪
対面式キッチン採用♪
収納豊富♪(SIC・WIC等)
お洗濯安心サンルーム完備♪
駐車場:2台可(並列)
団地内に買物施設や郵便局、教育施設等あり♪
「ジ・アウトレット広島」まで車で約5分☆
◇◇同区画:No.1(3.097万円)有◇◇
≪ご見学できます♪お気軽にお問い合わせください♪≫
~周辺環境~
・ファミリーマート 広島五月が丘店:徒歩13分(約1000m)
・ピュアークック 五月が丘店:徒歩14分(約1000m)
・広島五月が丘郵便局:徒歩10分(約800m)
・五月が丘保育園:徒歩7分(約550m)
・広島市立五月が丘小学校:徒歩11分(約750m)
・広島市立五月が丘中学校:徒歩15分(約1100m)
《広島市佐伯区エリアの新築戸建て住宅、不動産情報は「住むりえ」にお任せください》
*****
◇住まいのことなら≪住むりえ≫に何でもお気軽にご相談ください♪♪
◇お客様のニーズに最適な一戸建て、マンション、土地などの不動産情報をご提供致します!!
◇注文住宅をご検討の方やリノベーション、売却をお考えの方もお気軽にご相談ください♪♪
「人型アイコン」を地図上にドラッグすることで『Google Street View』に切り替わります。
※地図上の「対象地」は「日本、〒731-5101 広島県広島市佐伯区五月が丘4丁目31−23」の場所を指しています。実際の場所ではない場合がございます。詳しくはお問い合わせください。
物件概要
| 種目 | 新築一戸建住宅 | ||
|---|---|---|---|
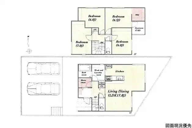
| 間取り | 4LDK | 間取り内訳 | |
| 土地面積 | 160.92㎡ | 私道面積 | |
| 建物面積 | 106.81㎡ | 建物構造規模 | 木造 2階建 |
| 築年月(竣工月) | 2025年09月 | 駐車場 | 有 |
| 建ぺい率/容積率 | 50%/100% | 都市計画 | 市街化区域 |
| 接道状況 | 西 公道 一方道路 | ||
| 地目 | |||
| 土地権利 | 所有権 | 地勢 | |
| 用途地域 | 第一種低層住居専用地域 | ||
| 現況 | 空家 | 取引態様 | 媒介 |
取引条件等
| 引渡し | 即時 |
|---|
その他
| 設備 | トイレ2ヶ所、システムキッチン、カウンターキッチン、IHクッキングヒーター、食器洗浄乾燥機、ウォークインクローゼット、床下収納、洗髪洗面化粧台、上水道、下水道、モニタ付インターホン、駐車場2台分、SIC、サンルーム、パントリー | ||
|---|---|---|---|
| 特徴 | 日当り良好、オール電化 | ||
| 諸条件・相談 | ☆お客様のニーズに最適な一戸建て、マンション、土地などの不動産情報をご提供致します! | ||
| 情報登録日 | 2025年11月4日 | 情報更新予定日 | 2026年5月26日 |
| 物件番号 | 136475 | 建築確認番号 | 第R07認広建セ00049号 |