廿日市市丸石4丁目 中古一戸建て
- 物件価格
- 1,800万円
- 所在地
- 廿日市市丸石4丁目
- 交通
- JR山陽本線「大野浦」 徒歩19分
- 最寄バス停
- 「丸石」 徒歩7分
- 学校区
- 大野西小 / 大野中
※学校区は住所から自動判定したものであり、保証できる情報ではございません。正確な学校区はお問い合わせ下さい。
- 物件更新日:
- 2025年11月15日
セールスポイント
【廿日市市丸石4丁目 中古戸建て住宅】
自然を身近に感じる閑静で落ち着いた地♪
平成27年5月築の築浅物件♪♪
敷地約50坪 木造2階建て 3LDK☆
オール電化・エコキュート採用♪
ソーラーパネル搭載♪
LDKは約19.5帖と広々。ゆとりの空間♪
開放感あふれる対面式キッチン♪
日当り・眺望良好♪
駐車場:2台可‼
爽やかな海と緑を感じられる立地♪
のびのびと子育てができる住環境です☆
≪資料請求できます♪お問い合わせください♪≫
~周辺環境~
・丸石保育園:徒歩12分(約900m)
・廿日市市立大野西小学校:徒歩34分(約2500m)
・廿日市市立大野中学校:徒歩33分(約2400m)
・大野浦病院:徒歩8分(約600m)
・廿日市市大野西市民センター:徒歩10分(約700m)
・丸石四丁目公園:徒歩5分(約400m)
《廿日市エリアの中古戸建て住宅、不動産情報は「住むりえ」にお任せください》
*****
◇住まいのことなら≪住むりえ≫に何でもお気軽にご相談ください♪♪
◇お客様のニーズに最適な一戸建て、マンション、土地などの不動産情報をご提供致します!!
◇注文住宅をご検討の方やリノベーション、売却をお考えの方もお気軽にご相談ください♪♪
「人型アイコン」を地図上にドラッグすることで『Google Street View』に切り替わります。
※地図上の「対象地」は「日本、〒739-0452 広島県廿日市市丸石4丁目11−14」の場所を指しています。実際の場所ではない場合がございます。詳しくはお問い合わせください。
物件概要
| 種目 | 中古一戸建住宅 | ||
|---|---|---|---|
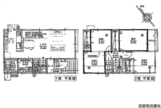
| 間取り | 3LDK | 間取り内訳 | |
| 土地面積 | 168.03㎡ | 私道面積 | |
| 建物面積 | 93.57㎡ | 建物構造規模 | 木造 2階建 |
| 築年月(竣工月) | 2015年05月 | 駐車場 | 有 |
| 建ぺい率/容積率 | 40%/80% | 都市計画 | 市街化区域 |
| 接道状況 | 南西2.5m 公道 一方道路 | ||
| 地目 | |||
| 土地権利 | 所有権 | 地勢 | |
| 用途地域 | 第一種低層住居専用地域 | ||
| 現況 | 所有者居住中 | 取引態様 | 媒介 |
取引条件等
| 引渡し | 相談 |
|---|
その他
| 設備 | トイレ2ヶ所、システムキッチン、カウンターキッチン、IHクッキングヒーター、床下収納、上水道、モニタ付インターホン、駐車場2台分、リビング階段 | ||
|---|---|---|---|
| 特徴 | 日当り良好、オール電化、エコキュート、ソーラーパネル4kw、眺望良好、室内程度良好 | ||
| 諸条件・相談 | ☆お客様のニーズに最適な一戸建て、マンション、土地などの不動産情報をご提供致します! | ||
| 情報登録日 | 2025年11月14日 | 情報更新予定日 | 2025年12月14日 |
| 物件番号 | 136721 | 建築確認番号 | |