廿日市市桜尾1丁目 新築一戸建て No.B
- 物件価格
- 5,380万円
- 所在地
- 廿日市市桜尾1丁目 No.B
- 交通
- 広電宮島線「廿日市」 徒歩11分
- 最寄バス停
- –
- 学校区
- 廿日市小 /-
※学校区は住所から自動判定したものであり、保証できる情報ではございません。正確な学校区はお問い合わせ下さい。
- 物件更新日:
- 2025年12月01日
- 写真入れ替え日:
- 2025年12月01日
セールスポイント
【廿日市市桜尾1丁目 新築戸建て住宅 No.B】
周辺環境充実♪平坦地で生活便利♪
令和7年10月完成。3階建ての2LDK+S☆
充実した設備が標準仕様♪♪
オール電化・エコキュート採用♪
2階リビング♪上部吹抜♪シーリングファン付♪
ランドリースペース設置♪
収納豊富♪
駐車場:並列2台可(カーポート付)
JR・広電・バス利用可!交通利便性良好♪
子育て世代に最適な住環境です☆
*****
家具付
65インチテレビ設置(リビング)
◇◇同区画:No.A(5.480万円)有◇◇
≪ご見学できます♪お気軽にお問い合わせください♪≫
~周辺環境~
・桜尾郵便局:徒歩1分(約39m)
・フレスタ廿日市住吉店:徒歩8分(約600m)
・クスリ岩崎 広島廿日市店:徒歩9分(約650m)
・廿日市市立廿日市小学校:徒歩11分(約800m)
・廿日市市立廿日市中学校:徒歩7分(約550m)
《廿日市エリアの新築戸建て住宅、不動産情報は「住むりえ」にお任せください》
*****
◇住まいのことなら≪住むりえ≫に何でもお気軽にご相談ください♪♪
◇お客様のニーズに最適な一戸建て、マンション、土地などの不動産情報をご提供致します!!
◇注文住宅をご検討の方やリノベーション、売却をお考えの方もお気軽にご相談ください♪♪
「人型アイコン」を地図上にドラッグすることで『Google Street View』に切り替わります。
※地図上の「対象地」は「日本、〒738-0004 広島県廿日市市桜尾1丁目1−6 井上アパート」の場所を指しています。実際の場所ではない場合がございます。詳しくはお問い合わせください。
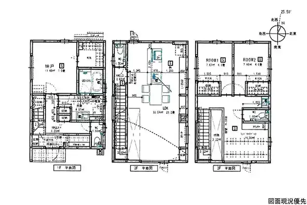
物件概要
| 種目 | 新築一戸建住宅 | ||
|---|---|---|---|
| 間取り | 2SLDK | 間取り内訳 | |
| 土地面積 | 89.87㎡ | 私道面積 | |
| 建物面積 | 115.12㎡ | 建物構造規模 | 木造 3階建 |
| 築年月(竣工月) | 2025年10月 | 駐車場 | 有 |
| 建ぺい率/容積率 | 80%/300% | 都市計画 | 市街化区域 |
| 接道状況 | 南東5.5m 公道 一方道路 | ||
| 地目 | |||
| 土地権利 | 所有権 | 地勢 | 平坦 |
| 用途地域 | 近隣商業地域 | ||
| 現況 | 空家 | 取引態様 | 媒介 |
取引条件等
| 引渡し | 即時 |
|---|
その他
| 設備 | 温水洗浄便座、追焚機能、浴室乾燥機、システムキッチン、カウンターキッチン、IHクッキングヒーター、浄水器、食器洗浄乾燥機、床下収納、洗髪洗面化粧台、照明器具、電気、上水道、下水道、モニタ付インターホン、防犯カメラ、駐車場2台分、SIC、納戸(7帖)、トイレ3ヶ所、スタディカウンター、シーリングファン、エコカラット、ユニットバス内サラウンドシステム、テレビ設置、家具付、ランドリースペース(カウンター) | ||
|---|---|---|---|
| 特徴 | 日当り良好、吹抜、オール電化、エコキュート、省令準耐火仕様、フラット35S金利Aプラン対応、住宅瑕疵保険料:100,000円要、ZEH水準適合証明書作成費用:22,000円要 | ||
| 諸条件・相談 | ☆お客様のニーズに最適な一戸建て、マンション、土地などの不動産情報をご提供致します! | ||
| 情報登録日 | 2025年11月20日 | 情報更新予定日 | 2026年5月1日 |
| 物件番号 | 136926 | 建築確認番号 | 第HP16-4024669号 |