広島市安佐南区西原2丁目 新築一戸建て No.C
- 物件価格
- 4,970万円(↓0.2%値下がり)
- 所在地
- 広島市安佐南区西原2丁目 No.C
- 交通
- AL「祇園新橋北」 徒歩7分
- 最寄バス停
- 「NHK放送所前」 徒歩9分
- 学校区
- 原南小 / 祇園東中
※学校区は住所から自動判定したものであり、保証できる情報ではございません。正確な学校区はお問い合わせ下さい。
- 物件更新日:
- 2026年04月25日
- 価格改定日:
- 2026年04月24日
セールスポイント
【安佐南区西原2丁目 新築戸建て住宅 No.C】
AL「祇園新橋北」駅まで徒歩7分♪
敷地約41坪。2階建て4LDKの新築戸建て登場☆
防火性能を持つ省令準耐火構造♪♪
省エネ、安全性を実感できるオール電化♪
対面式キッチンで居心地の良い住空間♪
収納充実プラン♪(SIC・WIC等)
駐車場:2台可‼
周辺環境良好です☆
**同区画有**
≪資料請求できます♪お問い合わせください♪≫
~周辺環境~
・セブンイレブン 広島祇園新道店:徒歩6分(約450m)
・ゆめタウン祇園:徒歩15分(約1100m)
・ウォンツ長束店:徒歩13分(約1000m)
・祇園幼稚園:徒歩6分(約400m)
・広島市立原南小学校:徒歩5分(約350m)
・広島市立祇園東中学校:徒歩16分(約1200m)
《広島市安佐南区エリアの新築戸建て住宅、不動産情報は「住むりえ」にお任せください》
*****
◇住まいのことなら≪住むりえ≫に何でもお気軽にご相談ください♪♪
◇お客様のニーズに最適な一戸建て、マンション、土地などの不動産情報をご提供致します!!
◇注文住宅をご検討の方やリノベーション、売却をお考えの方もお気軽にご相談ください♪♪
「人型アイコン」を地図上にドラッグすることで『Google Street View』に切り替わります。
※地図上の「対象地」は「日本、〒731-0113 広島県広島市安佐南区西原2丁目22−8」の場所を指しています。実際の場所ではない場合がございます。詳しくはお問い合わせください。
物件概要
| 種目 | 新築一戸建住宅 | ||
|---|---|---|---|
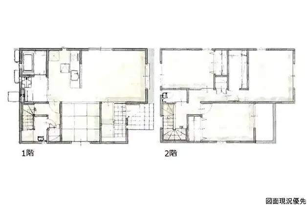
| 間取り | 4LDK | 間取り内訳 | |
| 土地面積 | 137.19㎡ | 私道面積 | |
| 建物面積 | 101.85㎡ | 建物構造規模 | 木造 2階建 |
| 築年月(竣工月) | 2026年05月 | 駐車場 | 有 |
| 建ぺい率/容積率 | 60%/200% | 都市計画 | 市街化区域 |
| 接道状況 | 北東4.5m 私道 一方道路 | ||
| 地目 | 宅地 | ||
| 土地権利 | 所有権 | 地勢 | |
| 用途地域 | 第一種住居地域 | ||
| 現況 | 未完成 | 取引態様 | 媒介 |
取引条件等
| 引渡し | 相談 |
|---|
その他
| 設備 | トイレ2ヶ所、システムキッチン、カウンターキッチン、IHクッキングヒーター、ウォークインクローゼット、床下収納、洗髪洗面化粧台、上水道、下水道、モニタ付インターホン、駐車場2台分、SIC | ||
|---|---|---|---|
| 特徴 | 日当り良好、オール電化、省令準耐火構造 | ||
| 諸条件・相談 | 司法書士・土地家屋調査士売主指定有 ☆お客様のニーズに最適な一戸建て、マンション、土地などの不動産情報をご提供致します! | ||
| 情報登録日 | 2026年1月6日 | 情報更新予定日 | 2026年5月9日 |
| 物件番号 | 138182 | 建築確認番号 | 第R07認広建セ01262号 |