広島市西区草津東1丁目 新築一戸建て No.2
- 物件価格
- 4,890万円
- 所在地
- 広島市西区草津東1丁目 No.2
- 交通
- 広電宮島線「草津」 徒歩6分
- 最寄バス停
- 「草津東町」 徒歩2分
- 学校区
- 草津小 / 庚午中
※学校区は住所から自動判定したものであり、保証できる情報ではございません。正確な学校区はお問い合わせ下さい。
- 物件更新日:
- 2026年04月13日
セールスポイント
【西区草津東1丁目 新築戸建て住宅 No.2】
広電「草津」電停まで徒歩6分♪
敷地約34坪。2階建て3LDKの新築戸建て登場☆
充実した設備が標準仕様♪♪
お洒落で開放的な折上天井が魅力のLDK♪
家族の会話が弾む対面式キッチン♪
2階洋室は間仕切りして2部屋に分割可能♪
収納充実プラン♪
駐車場:2台可‼
平坦徒歩の好立地。快適な住環境♪
国道2号線すぐそば!生活利便施設多数あり☆
≪資料請求できます♪お問い合わせください♪≫
~周辺環境~
・万惣 庚午店:徒歩5分(約400m)
・フジ庚午店:徒歩8分(約600m)
・くすりのレデイ 庚午南店:徒歩6分(約450m)
・至徳ルンビニー幼稚園:徒歩2分(約140m)
・広島市立草津小学校:徒歩4分(約280m)
・広島市立庚午中学校:徒歩12分(約900m)
《広島市西区エリアの新築戸建て住宅、不動産情報は「住むりえ」にお任せください》
*****
◇住まいのことなら≪住むりえ≫に何でもお気軽にご相談ください♪♪
◇お客様のニーズに最適な一戸建て、マンション、土地などの不動産情報をご提供致します!!
◇注文住宅をご検討の方やリノベーション、売却をお考えの方もお気軽にご相談ください♪♪
「人型アイコン」を地図上にドラッグすることで『Google Street View』に切り替わります。
※地図上の「対象地」は「日本、〒733-0861 広島県広島市西区草津東1丁目7−10」の場所を指しています。実際の場所ではない場合がございます。詳しくはお問い合わせください。
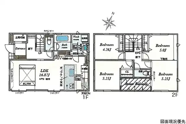
物件概要
| 種目 | 新築一戸建住宅 | ||
|---|---|---|---|
| 間取り | 3LDK | 間取り内訳 | |
| 土地面積 | 114.99㎡ | 私道面積 | |
| 建物面積 | 98.74㎡ | 建物構造規模 | 木造 2階建 |
| 築年月(竣工月) | 2026年06月 | 駐車場 | 有 |
| 建ぺい率/容積率 | 60%/200% | 都市計画 | 市街化区域 |
| 接道状況 | 南4.9m 公道 一方道路 | ||
| 地目 | |||
| 土地権利 | 所有権 | 地勢 | 平坦 |
| 用途地域 | 第一種住居地域 | ||
| 現況 | 未完成 | 取引態様 | 媒介 |
取引条件等
| 引渡し | 相談 |
|---|
その他
| 設備 | トイレ2ヶ所、浴室乾燥機、システムキッチン、カウンターキッチン、食器洗浄乾燥機、床下収納、洗髪洗面化粧台、照明器具、都市ガス、上水道、下水道、モニタ付インターホン、駐車場2台分、折上天井、収納充実、インナーバルコニー(約4.34㎡)、太陽光パネル(10年間売電収入無し) | ||
|---|---|---|---|
| 特徴 | 日当り良好、制振ダンパー、耐震等級3の住宅性能評価、長期優良住宅、エネルギー消費性能星3つ | ||
| 諸条件・相談 | 無料点検実施(引渡後3ヶ月・2年・5年・10年)、共有持分別途有 ☆お客様のニーズに最適な一戸建て、マンション、土地などの不動産情報をご提供致します! | ||
| 情報登録日 | 2026年3月6日 | 情報更新予定日 | 2026年4月27日 |
| 物件番号 | 140037 | 建築確認番号 | 第R08SHC101762号 |