広島市南区向洋新町1丁目 中古一戸建て
- 物件価格
- 2,160万円
- 所在地
- 広島市南区向洋新町1丁目
- 交通
- –
- 最寄バス停
- 「向洋新町1丁目」 徒歩2分
- 学校区
- 向洋新町小 / 大州中
※学校区は住所から自動判定したものであり、保証できる情報ではございません。正確な学校区はお問い合わせ下さい。
- 物件更新日:
- 2026年03月13日
セールスポイント
【南区向洋新町1丁目 中古戸建て住宅】
海や緑の自然を感じられる地♪
敷地約36坪 木造2階建て 平成2年築 4LDK☆
省エネ、安全性を実感できるオール電化♪
心地良さと安らぎの快適設備も充実♪
駐車場:1台可♪
小学校すぐそば!お子様の通学も安心☆
スーパ・コンビニ徒歩圏内♪♪
*リフォーム歴有*
≪ご見学できます♪お気軽にお問い合わせください♪≫
~周辺環境~
・ピュアークック洋光台店:徒歩4分(約240m)
・ローソン向洋大原町店:徒歩11分(約800m)
・広島市立向洋新町小学校:徒歩1分(約54m)
・洋光幼稚園:徒歩10分(約700m)
・洋光台第二公園:徒歩4分(約270m)
《広島市南区エリアの中古戸建て住宅、不動産情報は「住むりえ」にお任せください》
*****
◇住まいのことなら≪住むりえ≫に何でもお気軽にご相談ください♪♪
◇お客様のニーズに最適な一戸建て、マンション、土地などの不動産情報をご提供致します!!
◇注文住宅をご検討の方やリノベーション、売却をお考えの方もお気軽にご相談ください♪♪
「人型アイコン」を地図上にドラッグすることで『Google Street View』に切り替わります。
※地図上の「対象地」は「日本、〒734-0055 広島県広島市南区向洋新町1丁目7−27」の場所を指しています。実際の場所ではない場合がございます。詳しくはお問い合わせください。
物件概要
| 種目 | 中古一戸建住宅 | ||
|---|---|---|---|
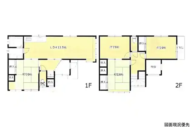
| 間取り | 4LDK | 間取り内訳 | |
| 土地面積 | 120.33㎡ | 私道面積 | |
| 建物面積 | 93.56㎡ | 建物構造規模 | 木造 2階建 |
| 築年月(竣工月) | 1990年07月 | 駐車場 | 有 |
| 建ぺい率/容積率 | 60%/200% | 都市計画 | 市街化区域 |
| 接道状況 | 西6m 公道 接面22.5m 一方道路 | ||
| 地目 | 宅地 | ||
| 土地権利 | 所有権 | 地勢 | |
| 用途地域 | 第二種中高層住居専用地域 | ||
| 現況 | 空家 | 取引態様 | 媒介 |
取引条件等
| 引渡し | 相談 |
|---|
その他
| 設備 | 温水洗浄便座、トイレ2ヶ所、浴室乾燥機、システムキッチン、IHクッキングヒーター、洗髪洗面化粧台 | ||
|---|---|---|---|
| 特徴 | 日当り良好、吹抜、オール電化、リフォーム歴:2020年頃1階トイレ交換工事済、2018年4月外壁・塗装工事、2010年4月浴室 | ||
| 諸条件・相談 | 閑静な住宅街 ☆お客様のニーズに最適な一戸建て、マンション、土地などの不動産情報をご提供致します! | ||
| 情報登録日 | 2026年3月12日 | 情報更新予定日 | 2026年5月1日 |
| 物件番号 | 140227 | 建築確認番号 | |