廿日市市地御前4丁目 中古一戸建て
- 物件価格
- 1,280万円(↓19.0%値下がり)
- 所在地
- 廿日市市地御前4丁目
- 交通
- 広電宮島線「地御前」 徒歩14分
- 最寄バス停
- –
- 学校区
- 地御前小 / 野坂中
※学校区は住所から自動判定したものであり、保証できる情報ではございません。正確な学校区はお問い合わせ下さい。
- 物件更新日:
- 2026年04月22日
- 価格改定日:
- 2026年04月21日
セールスポイント
【廿日市市地御前4丁目 中古戸建て住宅】
自然と安らぎに満ちた緑豊かな環境♪
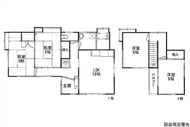
敷地約50坪 木造2階建て 昭和58年築 4LDK☆
全居室6帖以上のゆったりとした空間♪
駐車場:1台可‼
南向き道路につき日当り良好♪
西広島バイパスすぐそば♪
広電「地御前」電停まで徒歩14分☆
≪ご見学できます♪お気軽にお問い合わせください♪≫
~周辺環境~
・セブン-イレブン 廿日市地御前北3丁目店:徒歩12分(約800m)
・ファミリーマート 地御前店:徒歩13分(約800m)
・桃山公園:徒歩2分(約110m)
・地御前保育園:徒歩10分(約750m)
・廿日市市立地御前小学校:徒歩7分(約500m)
《廿日市エリアの中古戸建て住宅、不動産情報は「住むりえ」にお任せください♪》
*****
◇住まいのことなら≪住むりえ≫に何でもお気軽にご相談ください♪♪
◇お客様のニーズに最適な一戸建て、マンション、土地などの不動産情報をご提供致します!!
◇注文住宅をご検討の方やリノベーション、売却をお考えの方もお気軽にご相談ください♪♪
「人型アイコン」を地図上にドラッグすることで『Google Street View』に切り替わります。
※地図上の「対象地」は「日本、〒738-0042 広島県廿日市市地御前4丁目10−6」の場所を指しています。実際の場所ではない場合がございます。詳しくはお問い合わせください。
物件概要
| 種目 | 中古一戸建住宅 | ||
|---|---|---|---|
| 間取り | 4LDK | 間取り内訳 | |
| 土地面積 | 166.04㎡ | 私道面積 | |
| 建物面積 | 84.24㎡ | 建物構造規模 | 木造 2階建 |
| 築年月(竣工月) | 1983年04月 | 駐車場 | 有 |
| 建ぺい率/容積率 | 60%/200% | 都市計画 | 市街化区域 |
| 接道状況 | 南 公道 一方道路 | ||
| 地目 | |||
| 土地権利 | 所有権 | 地勢 | |
| 用途地域 | 第二種中高層住居専用地域 | ||
| 現況 | 空家 | 取引態様 | 媒介 |
取引条件等
| 引渡し | 相談 |
|---|
その他
| 設備 | 浄化槽 | ||
|---|---|---|---|
| 特徴 | 日当り良好 | ||
| 諸条件・相談 | ☆お客様のニーズに最適な一戸建て、マンション、土地などの不動産情報をご提供致します! | ||
| 情報登録日 | 2026年3月13日 | 情報更新予定日 | 2026年5月6日 |
| 物件番号 | 140265 | 建築確認番号 | |