広島市西区東観音町 新築一戸建て No.1
- 物件価格
- 4,980万円(↓3.9%値下がり)
- 所在地
- 広島市西区東観音町 No.1
- 交通
- 広電「西観音町」 徒歩7分
- 最寄バス停
- –
- 学校区
- 観音小 / 観音中
※学校区は住所から自動判定したものであり、保証できる情報ではございません。正確な学校区はお問い合わせ下さい。
- 物件更新日:
- 2026年04月12日
- 写真入れ替え日:
- 2026年03月21日
- 価格改定日:
- 2026年04月11日
セールスポイント
【西区東観音町 新築戸建て住宅 No.1】
*住宅性能表示W取得*耐震等級3*断熱等級6*
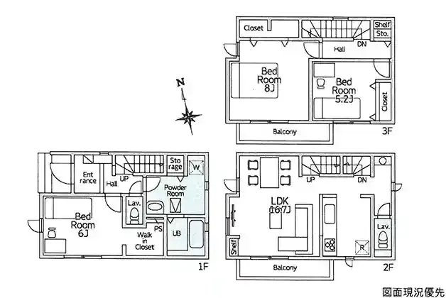
令和8年2月完成!3階建ての3LDK☆
充実した設備が標準仕様♪
LDKは2階にありプライバシーを守れます♪
家族の会話が弾む対面式キッチン♪
収納力豊富なWIC設置♪
駐車場:2台可(車種による)
平和大通りすぐそば♪
生活施設は徒歩圏内♪
電停・バス停近く交通利便性良好☆
◇◇同区画:No.3(5.080万円)有◇◇
≪ご見学できます♪お気軽にお問い合わせください♪≫
~周辺環境~
・セブン-イレブン 広島東観音町北店:徒歩1分(約81m)
・ユアーズ 天満店:徒歩6分(約400m)
・ウォンツ西観音店:徒歩7分(約450m)
・若葉保育園:徒歩2分(約150m)
・広島市立観音小学校:徒歩10分(約750m)
・広島市立観音中学校:徒歩19分(約1300m)
《広島市西区エリアの新築戸建て住宅、不動産情報は「住むりえ」にお任せください》
*****
◇住まいのことなら≪住むりえ≫に何でもお気軽にご相談ください♪♪
◇お客様のニーズに最適な一戸建て、マンション、土地などの不動産情報をご提供致します!!
◇注文住宅をご検討の方やリノベーション、売却をお考えの方もお気軽にご相談ください♪♪
「人型アイコン」を地図上にドラッグすることで『Google Street View』に切り替わります。
※地図上の「対象地」は「日本、〒733-0032 広島県広島市西区東観音町6−15」の場所を指しています。実際の場所ではない場合がございます。詳しくはお問い合わせください。
物件概要
| 種目 | 新築一戸建住宅 | ||
|---|---|---|---|
| 間取り | 3LDK | 間取り内訳 | |
| 土地面積 | 73.07㎡ | 私道面積 | |
| 建物面積 | 95.21㎡ | 建物構造規模 | 木造 3階建 |
| 築年月(竣工月) | 2026年02月 | 駐車場 | 有 |
| 建ぺい率/容積率 | 60%/300% | 都市計画 | 市街化区域 |
| 接道状況 | 北西9.8m 公道 一方道路 | ||
| 地目 | 宅地 | ||
| 土地権利 | 所有権 | 地勢 | 平坦 |
| 用途地域 | 第二種住居地域 | ||
| 現況 | 空家 | 取引態様 | 媒介 |
取引条件等
| 引渡し | 即時 |
|---|
その他
| 設備 | 温水洗浄便座、トイレ2ヶ所、追焚機能、浴室乾燥機、システムキッチン、カウンターキッチン、浄水器、ウォークインクローゼット、洗髪洗面化粧台、照明器具、電気、都市ガス、上水道、下水道、複層ガラス、モニタ付インターホン、防犯カメラ、駐車場2台分、宅配Box | ||
|---|---|---|---|
| 特徴 | バリアフリー、24時間換気システム、住宅性能表示W取得(設計性能+建設性能)、耐震等級3、断熱等級6 | ||
| 諸条件・相談 | 定期点検実施 ☆お客様のニーズに最適な一戸建て、マンション、土地などの不動産情報をご提供致します! | ||
| 情報登録日 | 2026年3月16日 | 情報更新予定日 | 2026年5月16日 |
| 物件番号 | 140361 | 建築確認番号 | 第R07SHC116621号 |