廿日市市上平良 新築一戸建て
- 物件価格
- 3,780万円
- 所在地
- 廿日市市上平良
- 交通
- –
- 最寄バス停
- 「中平良」 徒歩7分
- 学校区
- 平良小 /-
※学校区は住所から自動判定したものであり、保証できる情報ではございません。正確な学校区はお問い合わせ下さい。
- 物件更新日:
- 2026年03月27日
セールスポイント
【廿日市市上平良字群塚 新築戸建て住宅】
自然豊かな閑静な地♪
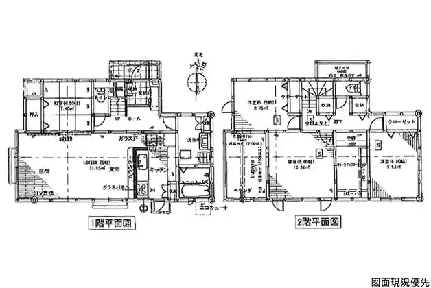
敷地約49坪。2階建て4LDKの新築戸建て登場☆
LDKは広々18帖以上!ゆとりの空間♪
開放感あふれる対面式キッチン♪
収納力豊富なWIC設置♪
公園徒歩1分!のびのびと子育てができる住環境☆
最寄りのバス停まで徒歩7分‼
≪資料請求できます♪お問い合わせください♪≫
~周辺環境~
・リブホール上平良店:徒歩8分(約550m)
・ファミリーマート 廿日市陽光台北店:徒歩15分(約1000m)
・ユアーズ 宮内店:徒歩17分(約1200m)
・廿日市市立平良小学校:徒歩14分(約950m)
・廿日市市立七尾中学校:徒歩14分(約1000m)
・郡塚第2公園:徒歩1分(約49m)
《廿日市エリアの新築戸建て住宅、不動産情報は「住むりえ」にお任せください》
*****
◇住まいのことなら≪住むりえ≫に何でもお気軽にご相談ください♪♪
◇お客様のニーズに最適な一戸建て、マンション、土地などの不動産情報をご提供致します!!
◇注文住宅をご検討の方やリノベーション、売却をお考えの方もお気軽にご相談ください♪♪
「人型アイコン」を地図上にドラッグすることで『Google Street View』に切り替わります。
※地図上の「対象地」は「日本、〒738-0026 広島県廿日市市上平良252−19」の場所を指しています。実際の場所ではない場合がございます。詳しくはお問い合わせください。
物件概要
| 種目 | 新築一戸建住宅 | ||
|---|---|---|---|
| 間取り | 4LDK | 間取り内訳 | |
| 土地面積 | 164.54㎡ | 私道面積 | |
| 建物面積 | 111.79㎡ | 建物構造規模 | 木造 2階建 |
| 築年月(竣工月) | 2026年08月 | 駐車場 | 有 |
| 建ぺい率/容積率 | 50%/100% | 都市計画 | 市街化区域 |
| 接道状況 | 北西6.2m 公道 | ||
| 地目 | |||
| 土地権利 | 所有権 | 地勢 | |
| 用途地域 | 第一種低層住居専用地域 | ||
| 現況 | 未完成 | 取引態様 | 媒介 |
取引条件等
| 引渡し | 相談 |
|---|
その他
| 設備 | 温水洗浄便座、トイレ2ヶ所、システムキッチン、カウンターキッチン、ウォークインクローゼット、洗髪洗面化粧台、上水道、浄化槽、モニタ付インターホン、駐車場3台分 | ||
|---|---|---|---|
| 特徴 | 日当り良好、オール電化 | ||
| 諸条件・相談 | ☆お客様のニーズに最適な一戸建て、マンション、土地などの不動産情報をご提供致します! | ||
| 情報登録日 | 2026年3月19日 | 情報更新予定日 | 2026年5月6日 |
| 物件番号 | 140448 | 建築確認番号 | 第R07認広建セ01596号 |