広島市安佐南区川内2丁目 新築一戸建て No.2
- 物件価格
- 4,380万円
- 所在地
- 広島市安佐南区川内2丁目 No.2
- 交通
- AL「古市橋」 徒歩16分
- 最寄バス停
- –
- 学校区
- 川内小 / 城南中
※学校区は住所から自動判定したものであり、保証できる情報ではございません。正確な学校区はお問い合わせ下さい。
- 物件更新日:
- 2026年03月24日
セールスポイント
【安佐南区川内2丁目 新築戸建て住宅 No.2】
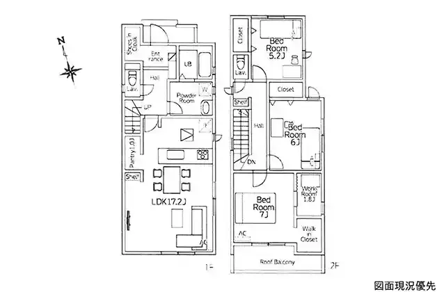
令和8年3月完成!敷地約35坪!2階建ての3SLDK☆
長期優良住宅*耐震等級3*断熱等級6
LDKは広々約17.2帖。開放的な空間♪
家族の会話が弾む対面式キッチン♪
収納力豊富なWIC設置♪
駐車場:並列2台可(車種による)
生活圏内に商業施設やバス停・ICあり♪
学校や公園も徒歩圏内!子育て環境良好☆
◇◇同区画:No.1(4.180万円)有◇◇
≪ご見学できます♪お気軽にお問い合わせください♪≫
~周辺環境~
・マルシェー川内店:徒歩5分(約400m)
・スーパードラッグ ひまわり川内店:徒歩6分(約450m)
・DCM川内店:徒歩12分(約800m)
・広島市立川内幼稚園:徒歩6分(約450m)
・広島市立川内小学校:徒歩6分(約450m)
・広島川内簡易郵便局:徒歩5分(約300m)
《広島市安佐南区エリアの新築戸建て住宅、不動産情報は「住むりえ」にお任せください》
*****
◇住まいのことなら≪住むりえ≫に何でもお気軽にご相談ください♪♪
◇お客様のニーズに最適な一戸建て、マンション、土地などの不動産情報をご提供致します!!
◇注文住宅をご検討の方やリノベーション、売却をお考えの方もお気軽にご相談ください♪♪
「人型アイコン」を地図上にドラッグすることで『Google Street View』に切り替わります。
※地図上の「対象地」は「日本、〒731-0102 広島県広島市安佐南区川内2丁目26−27」の場所を指しています。実際の場所ではない場合がございます。詳しくはお問い合わせください。
物件概要
| 種目 | 新築一戸建住宅 | ||
|---|---|---|---|
| 間取り | 3SLDK | 間取り内訳 | |
| 土地面積 | 116.76㎡ | 私道面積 | |
| 建物面積 | 98.54㎡ | 建物構造規模 | 木造 2階建 |
| 築年月(竣工月) | 2026年03月 | 駐車場 | 有 |
| 建ぺい率/容積率 | 60%/200% | 都市計画 | 市街化区域 |
| 接道状況 | 北3.4m 公道 一方道路 | ||
| 地目 | |||
| 土地権利 | 所有権 | 地勢 | |
| 用途地域 | 第一種住居地域 | ||
| 現況 | 空家 | 取引態様 | 媒介 |
取引条件等
| 引渡し | 即時 |
|---|
その他
| 設備 | 温水洗浄便座、トイレ2ヶ所、浴室乾燥機、システムキッチン、カウンターキッチン、浄水器、ウォークインクローゼット、床下収納、洗髪洗面化粧台、照明器具、都市ガス、上水道、下水道、モニタ付インターホン、ルーフバルコニー、駐車場2台分、SIC、納戸(1.8帖)、宅配Box | ||
|---|---|---|---|
| 特徴 | 日当り良好、バリアフリー、24時間換気システム、長期優良住宅、住宅性能表示W取得(設計性能+建設性能)、耐震等級3、断熱等級6 | ||
| 諸条件・相談 | 定期点検実施 ☆お客様のニーズに最適な一戸建て、マンション、土地などの不動産情報をご提供致します! | ||
| 情報登録日 | 2026年3月23日 | 情報更新予定日 | 2026年5月10日 |
| 物件番号 | 140580 | 建築確認番号 | 第R07SHC123009号 |