広島市南区日宇那町 新築一戸建て
- 物件価格
- 4,580万円
- 所在地
- 広島市南区日宇那町
- 交通
- –
- 最寄バス停
- 「日宇那町」 徒歩4分
- 学校区
- 楠那小 / 楠那中
※学校区は住所から自動判定したものであり、保証できる情報ではございません。正確な学校区はお問い合わせ下さい。
- 物件更新日:
- 2026年03月25日
セールスポイント
【南区日宇那町 新築戸建て住宅】
閑静な住宅地♪日当り良好♪
敷地約33坪。2階建て3LDK+Sの新築戸建て登場☆
お洒落で開放的な折上天井が魅力のLDK♪
家族の会話が弾む対面式キッチン♪
収納充実プラン♪
駐車場:2台可‼
広島高速道路の仁保IC近く♪利便性良好♪
公園や教育施設至近で子育て世代にピッタリ☆
≪資料請求できます♪お問い合わせください♪≫
~周辺環境~
・セブン-イレブン 広島楠那町店:徒歩6分(約450m)
・ファミリーマート 広島丹那町店:徒歩17分(約1200m)
・楠那保育園:徒歩7分(約550m)
・広島市立楠那小学校:徒歩6分(約400m)
・広島市立楠那中学校:徒歩3分(約200m)
・広島日宇那郵便局:徒歩2分(約160m)
・日宇那公園:徒歩4分(約270m)
《広島市南区エリアの新築戸建て住宅、不動産情報は「住むりえ」にお任せください》
*****
◇住まいのことなら≪住むりえ≫に何でもお気軽にご相談ください♪♪
◇お客様のニーズに最適な一戸建て、マンション、土地などの不動産情報をご提供致します!!
◇注文住宅をご検討の方やリノベーション、売却をお考えの方もお気軽にご相談ください♪♪
「人型アイコン」を地図上にドラッグすることで『Google Street View』に切り替わります。
※地図上の「対象地」は「日本、〒734-0031 広島県広島市南区日宇那町12−9」の場所を指しています。実際の場所ではない場合がございます。詳しくはお問い合わせください。
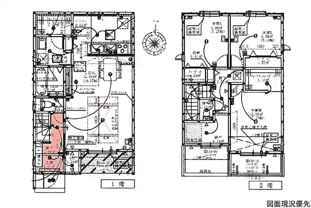
物件概要
| 種目 | 新築一戸建住宅 | ||
|---|---|---|---|
| 間取り | 3SLDK | 間取り内訳 | |
| 土地面積 | 110.91㎡ | 私道面積 | |
| 建物面積 | 100.64㎡ | 建物構造規模 | 木造 2階建 |
| 築年月(竣工月) | 2026年05月 | 駐車場 | 有 |
| 建ぺい率/容積率 | 60%/160% | 都市計画 | 市街化区域 |
| 接道状況 | 南4m 公道 一方道路 | ||
| 地目 | |||
| 土地権利 | 所有権 | 地勢 | |
| 用途地域 | 第一種住居地域 | ||
| 現況 | 未完成 | 取引態様 | 媒介 |
取引条件等
| 引渡し | 相談 |
|---|
その他
| 設備 | トイレ2ヶ所、システムキッチン、カウンターキッチン、ウォークインクローゼット、床下収納、洗髪洗面化粧台、都市ガス、上水道、下水道、複層ガラス、モニタ付インターホン、駐車場2台分、納戸、パントリー、折上天井 | ||
|---|---|---|---|
| 特徴 | 日当り良好、設計・建設性能評価書取得、耐震等級3、フラット35S(金利Aプラン)、適合証明取得代別途要93,500円(税込)、地盤保証20年、長期優良住宅申請中 | ||
| 諸条件・相談 | 引渡後無料点検(6ヶ月・2年・5年) ☆お客様のニーズに最適な一戸建て、マンション、土地などの不動産情報をご提供致します! | ||
| 情報登録日 | 2026年3月24日 | 情報更新予定日 | 2026年5月11日 |
| 物件番号 | 140611 | 建築確認番号 | 第R08SHC101563号 |