サーパス楽々園
- 物件価格
- 2,398万円
- 所在地
- 広島市佐伯区五日市中央1丁目18-23 サーパス楽々園204
- 交通
- 広電宮島線「楽々園」 徒歩4分
- 最寄バス停
- 「楽々園」 徒歩4分
- 学校区
- 五日市中央小 / 五日市中
※学校区は住所から自動判定したものであり、保証できる情報ではございません。正確な学校区はお問い合わせ下さい。
- 物件更新日:
- 2026年03月31日
セールスポイント
【サーパス楽々園】
五日市中央1丁目の中古マンション!
利便と静寂が同居する平坦な地♪
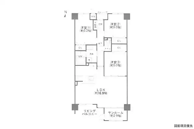
◇室内全面リフォーム◇
(2026年5月中旬完成予定)
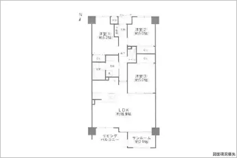
6階建て2階部分。専有面積75.24㎡の3LDK☆
南向きバルコニー!陽当り・通風良好♪
LDKは広々約16.9帖。オールフローリングです♪
対面式キッチンで居心地の良い住空間♪
お洗濯安心サンルーム付き♪
セキュリティ配慮されたオートロック仕様‼
ペット飼育可(細則有)
電停・バス停近く♪
生活利便施設は徒歩圏内☆
≪資料請求できます♪お問い合わせください♪≫
~周辺環境~
・セブン-イレブン 広島楽々園店:徒歩3分(約240m)
・イオンタウン 楽々園:徒歩7分(約450m)
・ウォンツ 五日市中央通り店:徒歩7分(約550m)
・広島市立五日市中央小学校:徒歩7分(約550m)
・広島市立五日市中学校:徒歩22分(約1600m)
《広島市佐伯区エリアの中古マンション、不動産情報は「住むりえ」にお任せください》
*****
◇住まいのことなら≪住むりえ≫に何でもお気軽にご相談ください♪♪
◇お客様のニーズに最適な一戸建て、マンション、土地などの不動産情報をご提供致します!!
◇注文住宅をご検討の方やリノベーション、売却をお考えの方もお気軽にご相談ください♪♪
「人型アイコン」を地図上にドラッグすることで『Google Street View』に切り替わります。
※地図上の「対象地」は「」の場所を指しています。実際の場所ではない場合がございます。詳しくはお問い合わせください。
物件概要
| 種目 | 中古マンション | ||
|---|---|---|---|
| 間取り | 3LDK | 間取り内訳 | |
| 専有面積 | 75.24㎡ | 建物構造 | RC |
| バルコニー面積 | 6.82㎡ | 向き | 南 |
| 階数 | 6階建 | 所在階 | 2階 |
| 築年月(竣工月) | 1989年03月 | 駐車場有無 | 有 |
| 駐車場料金 | 8,500円 | 総戸数 | 60 |
| 管理費 | 5,800円 | 積立金 | 12,000円 |
| 土地権利 | 所有権 | 管理形態/方式 | 管理会社に全部委託/日勤 |
| 用途地域 | 第一種住居地域 | ||
| 現況 | 空家 | 取引態様 | 媒介 |
取引条件等
| 引渡し | 期日指定 2026年5月中旬 |
|---|
その他
| 設備 | 浴室乾燥機、システムキッチン、カウンターキッチン、食器洗浄乾燥機、室内洗濯機置場、エレベーター、都市ガス、オートロック、モニタ付インターホン、駐輪場、アルコープ:1.13㎡、サンルーム(2.9帖) | ||
|---|---|---|---|
| 特徴 | 日当り良好、通風良好、室内全面リフォーム(2026年5月中旬完成予定) | ||
| 諸条件・相談 | ペット可、(細則有) ☆お客様のニーズに最適な一戸建て、マンション、土地などの不動産情報をご提供致します! | ||
| 情報登録日 | 2026年3月30日 | 情報更新予定日 | 2026年5月16日 |
| 物件番号 | 140841 | 建築確認番号 | |