エバーグリーン江波山
- 物件価格
- 1,890万円
- 所在地
- 広島市中区江波南2丁目23-13 エバーグリーン江波山 1010
- 交通
- –
- 最寄バス停
- 「江波南2丁目」 徒歩1分
- 学校区
- 江波小 / 江波中
※学校区は住所から自動判定したものであり、保証できる情報ではございません。正確な学校区はお問い合わせ下さい。
- 物件更新日:
- 2026年04月11日
セールスポイント
【エバーグリーン江波山】
中区江波南2丁目の中古マンション!
令和8年5月全室リフォーム完了予定♪♪
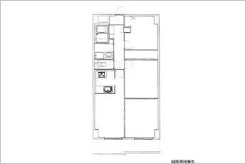
13階建て10階部分。専有面積68.40㎡の3LDK☆
高層階につき日当り・通風・眺望良好♪
バルコニーに面した開放的なLDK♪
使い勝手の良いⅡ型キッチン採用♪
江波電停徒歩圏内。最寄りのバス停徒歩1分‼
近隣にスーパーやコンビニが揃い利便性良好☆
小学校も近くお子様の通学も安心♪
敷地内に遊具付きの広場有♪
≪資料請求できます♪お問い合わせください♪≫
~周辺環境~
・セブンイレブン 広島江波南3丁目店:徒歩2分(約82m)
・スパーク 江波店:徒歩6分(約430m)
・広島江波郵便局:徒歩10分(約768m)
・広島市立江波小学校:徒歩4分(約283m)
・広島市立江波中学校:徒歩18分(約1374m)
・江波山公園:徒歩9分(約668m)
《広島市中区エリアの中古マンション、不動産情報は「住むりえ」にお任せください♪》
*****
◇住まいのことなら≪住むりえ≫に何でもお気軽にご相談ください♪♪
◇お客様のニーズに最適な一戸建て、マンション、土地などの不動産情報をご提供致します!!
◇注文住宅をご検討の方やリノベーション、売却をお考えの方もお気軽にご相談ください♪♪
「人型アイコン」を地図上にドラッグすることで『Google Street View』に切り替わります。
※地図上の「対象地」は「」の場所を指しています。実際の場所ではない場合がございます。詳しくはお問い合わせください。
物件概要
| 種目 | 中古マンション | ||
|---|---|---|---|
| 間取り | 3LDK | 間取り内訳 | |
| 専有面積 | 68.4㎡ | 建物構造 | SRC |
| バルコニー面積 | 8.37㎡ | 向き | |
| 階数 | 13階建 | 所在階 | 10階 |
| 築年月(竣工月) | 1986年08月 | 駐車場有無 | |
| 駐車場料金 | 総戸数 | 168 | |
| 管理費 | 6,100円 | 積立金 | 7,520円 |
| 土地権利 | 所有権 | 管理形態/方式 | 管理会社に全部委託/日勤 |
| 用途地域 | 第一種住居地域 | ||
| 現況 | 空家 | 取引態様 | 媒介 |
取引条件等
| 引渡し | 相談 |
|---|
その他
| 設備 | システムキッチン、カウンターキッチン、室内洗濯機置場、エレベーター、バイク置き場、駐輪場 | ||
|---|---|---|---|
| 特徴 | 日当り良好、令和8年5月全室リフォーム完了予定 | ||
| 諸条件・相談 | ☆お客様のニーズに最適な一戸建て、マンション、土地などの不動産情報をご提供致します! | ||
| 情報登録日 | 2026年4月10日 | 情報更新予定日 | 2026年5月27日 |
| 物件番号 | 141165 | 建築確認番号 | |