広島市西区高須台1丁目 中古一戸建て
- 物件価格
- 4,580万円
- 所在地
- 広島市西区高須台1丁目
- 交通
- –
- 最寄バス停
- 「高須台中央」 徒歩6分
- 学校区
- 高須小 / 古田中
※学校区は住所から自動判定したものであり、保証できる情報ではございません。正確な学校区はお問い合わせ下さい。
- 物件更新日:
- 2020年07月10日
セールスポイント
【西区高須台1丁目 中古戸建て住宅】
2階に防音工事済みの27.33帖ホームシアター&オーディオルームを備えたこだわりの2LDK注文住宅!!
ジェットバス付浴室!!2階の吹抜けは4mで開放的!!
高台につき市内一望♪
東側段落ちのため採光・通風・眺望良好♪
区画の整った閑静な街並み!
☆広島市西区エリアの中古戸建て住宅、不動産情報は「住むりえ」にお任せください♪
「人型アイコン」を地図上にドラッグすることで『Google Street View』に切り替わります。
※地図上の「対象地」は「日本、〒733-0876 広島県広島市西区高須台1丁目15−3」の場所を指しています。実際の場所ではない場合がございます。詳しくはお問い合わせください。
物件概要
| 種目 | 中古一戸建住宅 | ||
|---|---|---|---|
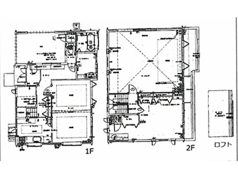
| 間取り | 2LDK | 間取り内訳 | |
| 土地面積 | 165.49㎡ | 私道面積 | |
| 建物面積 | 159.94㎡ | 建物構造規模 | 軽量鉄骨 2階建 |
| 築年月(竣工月) | 2003年04月 | 駐車場 | 有 |
| 建ぺい率/容積率 | 50%/100% | 都市計画 | 市街化区域 |
| 接道状況 | 西6m 公道 東6m 公道 二方道路(除角地) | ||
| 地目 | 宅地 | ||
| 土地権利 | 所有権 | 地勢 | |
| 用途地域 | 第一種低層住居専用地域 | ||
| 現況 | 所有者居住中 | 取引態様 | 媒介 |
取引条件等
| 引渡し | 相談 |
|---|
その他
| 設備 | トイレ2ヶ所、IHクッキングヒーター、都市ガス、上水道、下水道、電気温水器、エコキュート、ジェットバス、浴室暖房、エコカラットLDK、2階27.22帖ホームシアター&オーディオルーム(防音)、エアコン6基、床暖房4基、ビルトインガレージ(1台可)、ロフト | ||
|---|---|---|---|
| 特徴 | 積水ハウス施工の注文住宅、眺望良好、2階の吹抜け4m、東側段落ち、採光・通風良好、メーターモジュール、閑静な住宅街 | ||
| 諸条件・相談 | 太陽光売電6.65kw設置 年間売電額約20万円、引渡:契約後3ヶ月 | ||
| 情報登録日 | 2019年8月9日 | 情報更新予定日 | 2026年5月18日 |
| 物件番号 | 62561 | 建築確認番号 | |