広島市安佐南区高取北1丁目 土地
- 物件価格
- 980万円(↓18.3%値下がり)
- 所在地
- 広島市安佐南区高取北1丁目
- 交通
- AL「高取」 徒歩11分
- 最寄バス停
- 「第一高取団地」 徒歩6分
- 学校区
- 安北小 / 高取北中
※学校区は住所から自動判定したものであり、保証できる情報ではございません。正確な学校区はお問い合わせ下さい。
- 物件更新日:
- 2026年05月01日
- 価格改定日:
- 2026年04月29日
セールスポイント
【安佐南区高取北1丁目 売土地】
建築条件はありませんのでお好きな建築会社・工務店・ハウスメーカーで建築可能♪♪
◇緑豊かな閑静な住宅地!
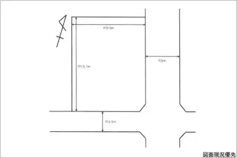
◇約47.91坪(約158.41㎡)の土地☆
◇角地につき開放的♪採光・通風良好♪
◇切込車庫縦列2台可!(幅2.5m×奥行約10.2m)
◇前面道路 南東・南西約6.2m!
◇小・中学校、公園徒歩5分圏内☆
≪資料請求できます♪お問い合わせください♪≫
~周辺環境~
・セブンイレブン 広島上安2丁目店:徒歩11分(約850m)
・ゆめタウン安古市:徒歩11分(約900m)
・フタバ図書TSUTAYA GIGA上安店:徒歩10分(約800m)
・広島市立安幼稚園:徒歩12分(約900m)
・広島市立安北小学校:徒歩4分(約240m)
・広島市立高取北中学校:徒歩5分(約350m)
・広島上安郵便局:徒歩11分(約900m)
《広島市安佐南区エリアの売土地、不動産情報は「住むりえ」にお任せください》
*****
◇住まいのことなら≪住むりえ≫に何でもお気軽にご相談ください♪♪
◇お客様のニーズに最適な一戸建て、マンション、土地などの不動産情報をご提供致します!!
◇注文住宅をご検討の方やリノベーション、売却をお考えの方もお気軽にご相談ください♪♪
「人型アイコン」を地図上にドラッグすることで『Google Street View』に切り替わります。
※地図上の「対象地」は「日本、〒731-0144 広島県広島市安佐南区高取北1丁目60−14」の場所を指しています。実際の場所ではない場合がございます。詳しくはお問い合わせください。
物件概要
| 種目 | 売地 | ||
|---|---|---|---|
| 土地面積 | 158.41㎡ | 私道面積 | |
| 建ぺい率/容積率 | 50%/100% | 都市計画 | 市街化区域 |
| 接道状況 | 南東6.2m 公道 南西6.2m 公道 角地 | ||
| 地目 | 宅地 | ||
| 土地権利 | 所有権 | 地勢 | |
| 用途地域 | 第一種低層住居専用地域 | ||
| 現況 | 更地 | 取引態様 | 媒介 |
取引条件等
| 引渡し | 相談 |
|---|
その他
| 条件等 | |||
|---|---|---|---|
| 設備 | 上水道、下水道 | ||
| 諸条件・相談 | ☆お客様のニーズに最適な一戸建て、マンション、土地などの不動産情報をご提供致します! | ||
| 情報登録日 | 2023年5月12日 | 情報更新予定日 | 2026年5月15日 |
| 物件番号 | 109243 | ||