広島市南区宇品御幸3丁目 新築一戸建て No.4
- 物件価格
- 4,430万円(↓2.2%値下がり)
- 所在地
- 広島市南区宇品御幸3丁目 No.4
- 交通
- 広電「宇品四丁目」 徒歩3分
- 最寄バス停
- –
- 学校区
- 宇品小 / 宇品中
※学校区は住所から自動判定したものであり、保証できる情報ではございません。正確な学校区はお問い合わせ下さい。
- 物件更新日:
- 2026年03月13日
- 価格改定日:
- 2026年03月12日
セールスポイント
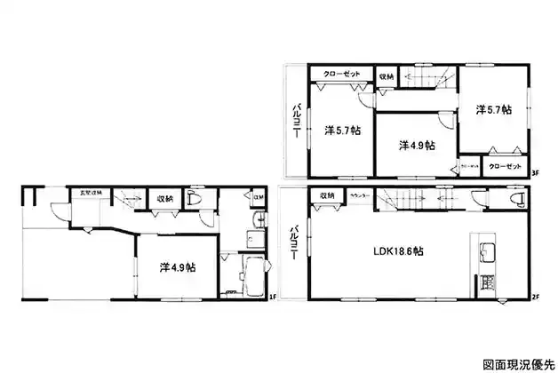
【南区宇品御幸3丁目 新築戸建て住宅 No.4】
平坦便利な地!周辺環境充実の宇品エリア♪
限られた敷地を活用した3階建て住宅☆
3LDK+S♪車庫付♪(1台可・車種による)
経済的なエコジョーズ採用‼
LDKは2階にありプライバシーを守れます☆
家族の会話が弾む対面式キッチン♪
広電「宇品四丁目」電停徒歩3分‼
小学校や公園が近くお子様にも安心の住環境☆
■■同区画有■■
≪ご見学できます♪お気軽にお問い合わせください♪≫
~周辺環境~
・セブン-イレブン 広島宇品神田4丁目店:徒歩4分(約300m)
・イオン 宇品店:徒歩9分(約600m)
・MEGAドン・キホーテ宇品店:徒歩11分(約750m)
・うじな保育園:徒歩2分(約180m)
・広島市立宇品小学校:徒歩4分(約300m)
・広島市立宇品中学校:徒歩15分(約1100m)
《広島市南区エリアの新築戸建て住宅、不動産情報は「住むりえ」にお任せください》
*****
◇住まいのことなら≪住むりえ≫に何でもお気軽にご相談ください♪♪
◇お客様のニーズに最適な一戸建て、マンション、土地などの不動産情報をご提供致します!!
◇注文住宅をご検討の方やリノベーション、売却をお考えの方もお気軽にご相談ください♪♪
「人型アイコン」を地図上にドラッグすることで『Google Street View』に切り替わります。
※地図上の「対象地」は「日本、〒734-0015 広島県広島市南区宇品御幸3丁目16−19」の場所を指しています。実際の場所ではない場合がございます。詳しくはお問い合わせください。
物件概要
| 種目 | 新築一戸建住宅 | ||
|---|---|---|---|
| 間取り | 3SLDK | 間取り内訳 | |
| 土地面積 | 56.9㎡ | 私道面積 | |
| 建物面積 | 115.4㎡ | 建物構造規模 | 木造 3階建 |
| 築年月(竣工月) | 2024年09月 | 駐車場 | 有 |
| 建ぺい率/容積率 | 60%/200% | 都市計画 | 市街化区域 |
| 接道状況 | 西5.3m 公道 一方道路 | ||
| 地目 | |||
| 土地権利 | 所有権 | 地勢 | 平坦 |
| 用途地域 | 第一種住居地域 | ||
| 現況 | 空家 | 取引態様 | 媒介 |
取引条件等
| 引渡し | 即時 |
|---|
その他
| 設備 | トイレ2ヶ所、システムキッチン、カウンターキッチン、床下収納、洗髪洗面化粧台、都市ガス、上水道、下水道、モニタ付インターホン、納戸、外壁は防火サイディング | ||
|---|---|---|---|
| 特徴 | エコジョーズ、断熱等級4、フラット35S金利Bタイプ対応 | ||
| 諸条件・相談 | ☆お客様のニーズに最適な一戸建て、マンション、土地などの不動産情報をご提供致します! | ||
| 情報登録日 | 2024年11月5日 | 情報更新予定日 | 2026年5月12日 |
| 物件番号 | 125343 | 建築確認番号 | 第R05認広建セ02815号 |