広島市佐伯区千同1丁目 新築一戸建て No.1
- 物件価格
- 3,340万円(↓0.4%値下がり)
- 所在地
- 広島市佐伯区千同1丁目 No.1
- 交通
- 広電宮島線「楽々園」 徒歩21分
- 最寄バス停
- 「坪井公民館前」 徒歩3分
- 学校区
- 五日市観音小 / 五日市観音中
※学校区は住所から自動判定したものであり、保証できる情報ではございません。正確な学校区はお問い合わせ下さい。
- 物件更新日:
- 2025年10月12日
- 写真入れ替え日:
- 2025年01月25日
- 価格改定日:
- 2025年10月08日
セールスポイント
【佐伯区千同1丁目 新築戸建て住宅 No.1】
買物施設や教育施設は徒歩圏内♪
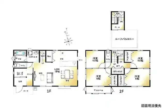
令和6年4月完成!約35坪!2階建ての4LDK☆
省エネ、安全性を実感できるオール電化♪
LDKはゆとりの約18帖♪対面式キッチン採用♪
お洗濯安心サンルーム完備♪
広々ルーフバルコニー付☆
駐車場:2台可(車種による)
西広島バイパス近郊に立地♪
平坦便利♪最寄りのバス停まで徒歩3分♪
◆◆同区画有◆◆
≪ご見学できます♪お気軽にお問い合わせください♪≫
~周辺環境~
・セブンイレブン 広島五日市千同店:徒歩5分(約400m)
・ローソン・ポプラ 五日市中央北店:徒歩6分(約400m)
・ユアーズ三筋店:徒歩7分(約500m)
・坪井保育園:徒歩4分(約300m)
・広島市立五日市観音小学校:徒歩6分(約450m)
・広島市立五日市観音中学校:徒歩25分(約1500m)
《広島市佐伯区エリアの新築戸建て住宅、不動産情報は「住むりえ」にお任せください》
*****
◇住まいのことなら≪住むりえ≫に何でもお気軽にご相談ください♪♪
◇お客様のニーズに最適な一戸建て、マンション、土地などの不動産情報をご提供致します!!
◇注文住宅をご検討の方やリノベーション、売却をお考えの方もお気軽にご相談ください♪♪
「人型アイコン」を地図上にドラッグすることで『Google Street View』に切り替わります。
※地図上の「対象地」は「日本、〒731-5141 広島県広島市佐伯区千同1丁目27−8」の場所を指しています。実際の場所ではない場合がございます。詳しくはお問い合わせください。
物件概要
| 種目 | 新築一戸建住宅 | ||
|---|---|---|---|
| 間取り | 4LDK | 間取り内訳 | |
| 土地面積 | 116.03㎡ | 私道面積 | |
| 建物面積 | 108.33㎡ | 建物構造規模 | 木造 2階建 |
| 築年月(竣工月) | 2024年04月 | 駐車場 | 有 |
| 建ぺい率/容積率 | 60%/160% | 都市計画 | 市街化区域 |
| 接道状況 | 南2.07m 公道 一方道路 | ||
| 地目 | |||
| 土地権利 | 所有権 | 地勢 | 平坦 |
| 用途地域 | 第二種中高層住居専用地域 | ||
| 現況 | 空家 | 取引態様 | 媒介 |
取引条件等
| 引渡し | 即時 |
|---|
その他
| 設備 | 温水洗浄便座、トイレ2ヶ所、追焚機能、システムキッチン、カウンターキッチン、IHクッキングヒーター、浄水器、食器洗浄乾燥機、床下収納、洗髪洗面化粧台、電気、上水道、下水道、複層ガラス、モニタ付インターホン、ルーフバルコニー、駐車場2台分、SIC、サンルーム、リビング階段 | ||
|---|---|---|---|
| 特徴 | オール電化、省令準耐火構造仕様、性能向上計画認定住宅、準防火構造 | ||
| 諸条件・相談 | 表記土地以外にセットバック部分の土地(12.62㎡)有 ☆お客様のニーズに最適な一戸建て、マンション、土地などの不動産情報をご提供致します! | ||
| 情報登録日 | 2025年1月20日 | 情報更新予定日 | 2026年5月11日 |
| 物件番号 | 127411 | 建築確認番号 | 第R05認広建セ01112号 |