広島市佐伯区五月が丘2丁目 土地
- 物件価格
- 3,176万円(↓6.0%値下がり)
- 所在地
- 広島市佐伯区五月が丘2丁目
- 交通
- –
- 最寄バス停
- 「五月が丘2丁目」 徒歩1分
- 学校区
- 五月が丘小 / 五月が丘中
※学校区は住所から自動判定したものであり、保証できる情報ではございません。正確な学校区はお問い合わせ下さい。
- 物件更新日:
- 2026年04月03日
- 価格改定日:
- 2026年04月02日
セールスポイント
【佐伯区五月が丘2丁目 売土地】
自然と安らぎに満ちた緑豊かな住環境♪
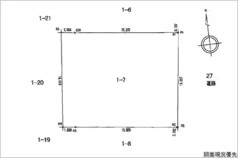
約71.96坪(約237.90㎡)広い土地☆
居宅・居宅付事務所・グループホーム等に最適‼
建築条件はありませんのでお好きな建築会社・工務店・ハウスメーカーで建築可能♪♪
前面道路は東約15.5m!間口は約14.01m!
団地内に買物施設や郵便局、教育施設等あり♪
「ジ・アウトレット広島」まで車で約5分☆
≪資料請求できます♪お問い合わせください♪≫
~周辺環境~
・ピュアークック五月が丘店:徒歩2分(約150m)
・ファミリーマート 広島五月が丘店:徒歩4分(約300m)
・五月が丘認定こども園:徒歩10分(約600m)
・広島市立五月が丘小学校:徒歩8分(約500m)
・広島市立五月が丘中学校:徒歩10分(約550m)
・広島市信用組合 五月が丘支店:徒歩1分(約24m)
《広島市佐伯区エリアの売土地、不動産情報は「住むりえ」にお任せください》
*****
◇住まいのことなら≪住むりえ≫に何でもお気軽にご相談ください♪♪
◇お客様のニーズに最適な一戸建て、マンション、土地などの不動産情報をご提供致します!!
◇注文住宅をご検討の方やリノベーション、売却をお考えの方もお気軽にご相談ください♪♪
「人型アイコン」を地図上にドラッグすることで『Google Street View』に切り替わります。
※地図上の「対象地」は「日本、〒731-5101 広島県広島市佐伯区五月が丘2丁目6−10」の場所を指しています。実際の場所ではない場合がございます。詳しくはお問い合わせください。
物件概要
| 種目 | 売地 | ||
|---|---|---|---|
| 土地面積 | 237.9㎡ | 私道面積 | |
| 建ぺい率/容積率 | 50%/100% | 都市計画 | 市街化区域 |
| 接道状況 | 東15.5m 公道 接面14.01m 一方道路 | ||
| 地目 | 宅地 | ||
| 土地権利 | 所有権 | 地勢 | |
| 用途地域 | 第二種低層住居専用地域 | ||
| 現況 | 更地 | 取引態様 | 媒介 |
取引条件等
| 引渡し | 相談 |
|---|
その他
| 条件等 | |||
|---|---|---|---|
| 設備 | プロパンガス、上水道、下水道 | ||
| 諸条件・相談 | ☆お客様のニーズに最適な一戸建て、マンション、土地などの不動産情報をご提供致します! | ||
| 情報登録日 | 2025年1月27日 | 情報更新予定日 | 2026年5月12日 |
| 物件番号 | 127666 | ||