広島市安佐南区川内1丁目 中古一戸建て
- 物件価格
- 2,980万円
- 所在地
- 広島市安佐南区川内1丁目
- 交通
- AL「中筋」 徒歩18分
- 最寄バス停
- 「川内一丁目」 徒歩9分
- 学校区
- 川内小 / 城南中
※学校区は住所から自動判定したものであり、保証できる情報ではございません。正確な学校区はお問い合わせ下さい。
- 物件更新日:
- 2025年12月20日
セールスポイント
【安佐南区川内1丁目 中古戸建て住宅】
生活圏内に商業施設やICあり♪♪
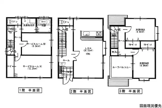
約35坪 木造3階建て 平成23年築 2LDK+2S☆
玄関とLDKは2階にあり♪
家族の会話が弾む対面式キッチン♪
開放的なルーフバルコニー付☆
駐車場:2台可‼
公園が近く子育てにも安心の住環境です☆
≪ご見学できます♪お気軽にお問い合わせください♪≫
~周辺環境~
・マルシェー川内店:徒歩8分(約600m)
・スーパードラッグひまわり:徒歩10分(約700m)
・セブンイレブン 広島川内2丁目店:徒歩14分(約1000m)
・広島市立川内小学校:徒歩16分(約1200m)
・広島市立城南中学校:徒歩32分(約2300m)
・川内第四公園:徒歩4分(約300m)
《広島市安佐南区エリアの中古戸建て住宅、不動産情報は「住むりえ」にお任せください》
*****
◇住まいのことなら≪住むりえ≫に何でもお気軽にご相談ください♪♪
◇お客様のニーズに最適な一戸建て、マンション、土地などの不動産情報をご提供致します!!
◇注文住宅をご検討の方やリノベーション、売却をお考えの方もお気軽にご相談ください♪♪
「人型アイコン」を地図上にドラッグすることで『Google Street View』に切り替わります。
※地図上の「対象地」は「日本、〒731-0102 広島県広島市安佐南区川内1丁目19−7」の場所を指しています。実際の場所ではない場合がございます。詳しくはお問い合わせください。
物件概要
| 種目 | 中古一戸建住宅 | ||
|---|---|---|---|
| 間取り | 2SLDK | 間取り内訳 | |
| 土地面積 | 116.38㎡ | 私道面積 | |
| 建物面積 | 110.11㎡ | 建物構造規模 | 木造 3階建 |
| 築年月(竣工月) | 2011年06月 | 駐車場 | 有 |
| 建ぺい率/容積率 | 60%/200% | 都市計画 | 市街化区域 |
| 接道状況 | 東 公道 一方道路 | ||
| 地目 | |||
| 土地権利 | 所有権 | 地勢 | |
| 用途地域 | 第一種住居地域 | ||
| 現況 | 空家 | 取引態様 | 媒介 |
取引条件等
| 引渡し | 相談 |
|---|
その他
| 設備 | トイレ2ヶ所、システムキッチン、カウンターキッチン、床下収納、モニタ付インターホン、ルーフバルコニー、駐車場2台分、サービスルーム×2 | ||
|---|---|---|---|
| 特徴 | 室内程度良好 | ||
| 諸条件・相談 | ☆お客様のニーズに最適な一戸建て、マンション、土地などの不動産情報をご提供致します! | ||
| 情報登録日 | 2025年3月27日 | 情報更新予定日 | 2026年5月10日 |
| 物件番号 | 129564 | 建築確認番号 | |