広島市西区南観音2丁目 中古一戸建て ☆リノベーション☆
- 物件価格
- 3,480万円(↓20.5%値下がり)
- 所在地
- 広島市西区南観音2丁目 ☆リノベーション☆
- 交通
- –
- 最寄バス停
- 「南観音三丁目」 徒歩2分
- 学校区
- 南観音小/観音小 / 観音中
※学校区は住所から自動判定したものであり、保証できる情報ではございません。正確な学校区はお問い合わせ下さい。
- 物件更新日:
- 2026年04月04日
- 価格改定日:
- 2026年04月03日
セールスポイント
【西区南観音2丁目 中古戸建て住宅】
全面リノベーションを施したおしゃれな空間♪
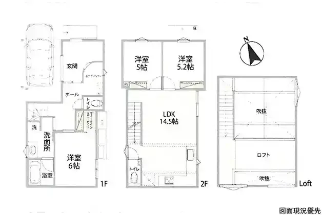
木造2階建て 昭和56年1月築 3LDK☆
オール電化・エコキュートで快適♪
LDKは2階にありプライバシーを守れます♪
家具調キッチン「グラフテクト」採用☆
開放感のある吹抜ロフト付♪
駐車場:1台可(車種による)
平坦地で徒歩や自転車でのお出かけも楽々♪
充実の周辺環境☆
市内中心部や横川駅前エリアへのアクセスも良好♪
≪ご見学できます♪お気軽にお問い合わせください♪≫
~周辺環境~
・ピュアークック 観音店:徒歩2分(約130m)
・スパーク 観音店:徒歩2分(約160m)
・セブン-イレブン 広島南観音2丁目店:徒歩2分(約150m)
・広島市立南観音小学校:徒歩8分(約550m)
・広島市立観音中学校:徒歩6分(約350m)
《広島市西区エリアの中古戸建て住宅、不動産情報は「住むりえ」にお任せください♪》
*****
◇住まいのことなら≪住むりえ≫に何でもお気軽にご相談ください♪♪
◇お客様のニーズに最適な一戸建て、マンション、土地などの不動産情報をご提供致します!!
◇注文住宅をご検討の方やリノベーション、売却をお考えの方もお気軽にご相談ください♪♪
「人型アイコン」を地図上にドラッグすることで『Google Street View』に切り替わります。
※地図上の「対象地」は「日本、〒733-0035 広島県広島市西区南観音2丁目6−10」の場所を指しています。実際の場所ではない場合がございます。詳しくはお問い合わせください。
物件概要
| 種目 | 中古一戸建住宅 | ||
|---|---|---|---|
| 間取り | 3LDK | 間取り内訳 | |
| 土地面積 | 67.1㎡ | 私道面積 | |
| 建物面積 | 82.12㎡ | 建物構造規模 | 木造 2階建 |
| 築年月(竣工月) | 1981年01月 | 駐車場 | 有 |
| 建ぺい率/容積率 | 60%/160% | 都市計画 | 市街化区域 |
| 接道状況 | 北東4m 私道 位置指定有 一方道路 | ||
| 地目 | |||
| 土地権利 | 所有権 | 地勢 | 平坦 |
| 用途地域 | 第二種住居地域 | ||
| 現況 | 空家 | 取引態様 | 媒介 |
取引条件等
| 引渡し | 即時 |
|---|
その他
| 設備 | トイレ2ヶ所、システムキッチン、IHクッキングヒーター、ウォークインクローゼット、上水道、下水道、ロフト、ユーティリティ、エアコン2台付 | ||
|---|---|---|---|
| 特徴 | 吹抜、オール電化、エコキュート、全面リノベーション | ||
| 諸条件・相談 | ☆お客様のニーズに最適な一戸建て、マンション、土地などの不動産情報をご提供致します! | ||
| 情報登録日 | 2025年7月14日 | 情報更新予定日 | 2026年5月1日 |
| 物件番号 | 133022 | 建築確認番号 | |